2-Story 5-Bedroom Modern Farmhouse With Classic Covered Porch and Upstairs Master (Floor Plan)

Plan Details:
- 2,691 Sq Ft
- 4-5 Beds
- 3.5 – 4.5 Baths
- 2 Stories
- 2 Cars
Get ready to roll up your sleeves and slip into your favorite flannel; we’re about to embark on a journey that delves into the enchanting details of a contemporary farmhouse that’s as cozy as a hug from a bale of hay and as refined as a ballet performed in a rustic barnyard.
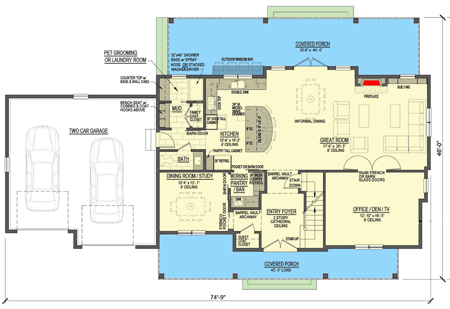
Picture a living space spanning an impressive 2,691 square feet, offering more room than even the most heartfelt love from Grandma, and accommodating a generous gathering of guests without breaking a sweat.



Before you fall in love with the perfect floor plan, take a moment to consider the financial side. Comparing mortgage rates, improving your credit score, and working with a reliable real estate agent can save you thousands. Look into home insurance, consider a home warranty, and plan ahead for refinancing. It all adds long-term value to your home.
With the flexibility to house 4-5 bedrooms and 3.5 to 4.5 bathrooms, this residence stands as the perfect backdrop for nurturing a spirited family, hosting a Thanksgiving feast that won’t devolve into food fights, or simply relishing moments of solitude with plenty of room to breathe.
But let’s begin with the first glimpse – a genuine “wow” factor that comes in the form of a covered front porch. It’s an invitation to step back in time, reminiscent of days spent sipping lemonade on languid summer afternoons.

The tin roof above serenades you with a soothing chorus of raindrops, flawlessly blending contemporary elegance with the quaint allure of country living. Beyond being just a house plan, it’s an architectural masterpiece crafted by the symphony of tradition and innovation.
Now, as you cross the threshold, a grand foyer unfolds before you, adorned with a lofty ceiling that brings your aspirations a touch closer to reality.

And don’t overlook the coat closet conveniently stationed nearby. It’s a thoughtful touch that treats your guests’ belongings with the VIP status they deserve. After all, what says “Welcome” more eloquently than a designated space for their coats and accessories?
Steering to the left, a formal dining room awaits, poised for those legendary family gatherings. But if roast turkey isn’t your culinary anthem, this space seamlessly transforms into a study.

Imagine immersing yourself in a riveting mystery novel while a storm orchestrates outside, or perhaps penning your memoirs as the fireplace crackles in the adjacent room.
And speaking of adjacency, the kitchen shares a clever connection with this room through a butler’s pantry complete with a wet bar, ensuring that those midnight snacks or urgent beverage refills are just a casual saunter away.

Moving on, the great room emerges as a harmonious blend of modern luxuries and the heartwarming essence of a farmhouse.
Imagine a prep island that could easily play host to a “MasterChef” episode, a fireplace ready to combat the chill of winter nights, and French doors that graciously unveil a charming back porch. It’s almost as if the designers possessed a premonition of your wishes before you even voiced them.

But wait, there’s another gem across the great room – a den that promises tranquility in times when you need a serene escape or an impromptu home office for those inevitable Zoom calls.
We’ve all been there, haven’t we? Those moments when your cat decides to showcase her acrobatics to the world in the background.

Now, let’s ascend to the sanctuary that is the upstairs realm. Here, two ensuite bedrooms await alongside two that share a Jack and Jill bathroom. It’s the perfect remedy for sibling bathroom disputes.
And for your convenience, the laundry room enjoys a clever placement on the upper floor. After all, who needs to lug laundry downstairs when it could be an Olympic event in itself?

In essence, this contemporary farmhouse plan is not just about bricks and planks, nor is it solely about intricate designs.
It’s about embracing the warmth of home and the comforting expanse of space. It encapsulates a life enriched by the harmony of family, laughter, and serenity.

This dwelling seamlessly unites the pragmatic with the aesthetic, enhancing the value of every cherished moment spent within its walls. If you’re prepared to lay down roots and flourish in a space that nurtures your aspirations and celebrates your reality, this exclusive modern farmhouse plan is ready and waiting.
But remember, it’s not just a house; it’s a haven that reverberates with your unique story, beckoning you to craft new memories at every turn. Because, when all is said and done, isn’t that what truly matters?
Choosing a house plan is just the beginning—what comes next can shape your future. Be sure to research mortgage rates, check your credit score, and work with a reliable real estate agent.
Protect your home with solid home insurance, a dependable home warranty, and keep an eye on future refinance options. Want to increase your property value?
Think solar panels, smart home upgrades, and energy-efficient appliances. And before construction starts, use interior design software to bring your vision to life, down to the last detail.










