Two-Story 4-Bedroom Shingle House with Dual Master Suites and Rotunda (Floor Plan)

Specifications:
- 6,060 Sq Ft
- 4 Beds
- 4.5 Baths
- 2 Stories
- 4 Cars
Welcome to the kind of house that makes you pause, take a deep breath, and think, “Wow, I could actually live here.”
At over 6,000 square feet, this Shingle Style home blends timeless elegance with smart design.
With 4 bedrooms, 4.5 bathrooms, two stories, and garage space for 4 cars, this house doesn’t just whisper luxury—it sings it.
Let’s explore every beautiful corner of this home and discover why it might be the perfect space to call your own.


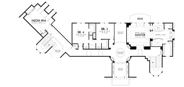
A Grand Entrance with Rotunda Drama
The moment you step inside, you’re greeted by a soaring two-story front foyer that gives a clear message: you’ve arrived somewhere special.
And then there’s the rotunda—yes, like something you’d expect in a castle or a five-star resort.
But this isn’t just for show.
It elegantly splits the home into public and private spaces, allowing for both flow and privacy.
From a financial perspective, spaces like this help boost property value significantly.
If you’re considering a purchase and working with a real estate agent, features like this give you an edge in long-term investment potential.
Before you fall in love with the perfect floor plan, take a moment to consider the financial side. Comparing mortgage rates, improving your credit score, and working with a reliable real estate agent can save you thousands. Look into home insurance, consider a home warranty, and plan ahead for refinancing. It all adds long-term value to your home.
The Guest Suite That Feels Like a Boutique Hotel
Off to the right of the rotunda is a guest suite that could very well make your guests extend their visit—permanently.
It features an airy 12-foot ceiling, a charming bay window, and a see-through fireplace that connects the bedroom and bathroom.
That’s not just cozy—it’s statement-making.
The bathroom is built for comfort and luxury, with a whirlpool tub, separate shower, twin vanities, and even a private toilet enclosure.
Whether you’re housing in-laws or long-lost friends, they’ll feel like VIPs.
Considering the luxury, this is where a home equity loan could come in handy if you’re thinking of customizing the space further.

And for buyers, this setup ticks a major box for flexible living options.
A Kitchen Built for Gatherings and Gourmet Dreams
Let’s not beat around the butcher block: this kitchen is a showstopper.
At its center is a generous island with a downdraft cooktop, perfect for cooking while chatting with guests—or kids begging for snacks.
Above it all, a barrel-vaulted ceiling adds a dramatic touch that makes everyday meal prep feel like an episode of your favorite cooking show.
There’s also a butler’s pantry discreetly linking the kitchen to the dining room, giving you plenty of space to prep hors d’oeuvres or stash the chaos during dinner parties.
Thinking about upgrades or custom appliances?
That’s where a building cost estimator or home improvement loan can be your best friend.
Also, using interior design software can help you visualize your dream kitchen before the first cabinet is even installed.
Elegant Public Spaces with Fireplaces and French Doors
On the public side of the house, the family room and living room share a double-sided fireplace and those same luxurious 12-foot ceilings, making the space feel even more expansive.
These rooms strike that perfect balance between cozy and formal.
French doors in the family room lead directly to the wrap-around porch—because indoor-outdoor flow is everything when it comes to entertaining (or just enjoying your coffee in peace).

Want to elevate these rooms even more?
Consider incorporating smart home technology for lighting, climate, and entertainment control, and don’t forget to install the best home security system to protect it all.
Southern Charm Meets Everyday Luxury
Let’s take a minute to talk about this wrap-around porch.
It’s not just a place to sip sweet tea (although it’s perfect for that)—it’s a functional extension of your living space.
Whether you’re watching storms roll in, greeting neighbors, or hosting dinner outside, this porch adds serious charm and usability.
Plus, the drive-through portico ensures guests arrive in style and you stay dry on rainy days.
Don’t forget to factor in home insurance coverage for your outdoor spaces—they’re valuable, too.
Upstairs Master Suite
Head upstairs and get ready to swoon.
The master suite is everything you could want and more: a barrel-vault ceiling, another see-through fireplace, and—get this—your own private deck.
Imagine enjoying a quiet sunrise, glass of wine, or your favorite podcast from your personal outdoor oasis.

The master bath is equally stunning, with ample space, luxe finishes, and smart layout.
Add a walk-in closet that might require its own zip code, and you’re set.
When buying a home, this kind of master suite isn’t just a luxury—it’s a smart investment.
Not to mention, it’s a great feature to highlight during the home loan pre-approval process.
Secondary Bedrooms with Storage and Style
The other bedrooms upstairs are no slouch either.
Each has its own walk-in closet and vanity, which means everyone gets a little slice of personal space.
Whether you have teens, guests, or a home office setup in mind, these rooms offer flexibility and function.
They’re also great for long-term planning.
As your needs change, these rooms can change with you.
And if you ever decide to sell, the extra storage and amenities will help keep your property value strong.
Financing and Planning for Your Dream Home
A house this beautiful deserves a well-thought-out financial plan.

Whether you’re navigating current mortgage rates, applying for home improvement loans, or considering a refinance mortgage to fund upgrades, it pays to be prepared.
Working with a knowledgeable real estate agent and keeping an eye on your credit score can also help streamline the process.
Use tools like a building cost estimator to predict your total spend, and don’t forget to factor in the long-term benefits of this purchase as a real estate investment.
Home Warranty and Security
Once you’ve secured this masterpiece, it’s time to protect it.
A comprehensive home warranty ensures your major systems and appliances stay in working order.
It’s peace of mind that helps avoid expensive surprises.
Pair that with the best home security system and a robust home insurance policy, and you’ve got a fortress that’s both elegant and protected.
And with today’s smart home technology, you can control and monitor everything from your phone—even while relaxing on your private deck.
This isn’t just four walls and a roof.
It’s a lifestyle.

From the elegant rotunda to the luxurious master suite, from the chef’s kitchen to the gracious wrap-around porch, every inch of this home is designed to elevate your everyday life.
Whether you’re buying with the help of a home equity loan, exploring your first big purchase, or considering your next great investment, this home plan offers everything you need—and then some.
If you’re looking for comfort, sophistication, and smart design in one unforgettable package, this Spectacular Shingle Style home just might be your perfect match.
Choosing a house plan is just the beginning—what comes next can shape your future. Be sure to research mortgage rates, check your credit score, and work with a reliable real estate agent.
Protect your home with solid home insurance, a dependable home warranty, and keep an eye on future refinance options. Want to increase your property value?
Think solar panels, smart home upgrades, and energy-efficient appliances. And before construction starts, use interior design software to bring your vision to life, down to the last detail.










