Single-Story 3-Bedroom Traditional House with Outdoor Kitchen (Floor Plan)

Specifications:
- 4,076 Sq Ft
- 3 Beds
- 3.5+ Baths
- 1 Stories
- 4 Cars
You know that moment when you find a house plan that just clicks?
Like, this is it.
That perfect blend of comfort, space, and “holy smokes, this place has an outdoor fireplace”?
Well, say hello to your next obsession.




With 4,076 square feet of single-story living, three bedrooms, a four-car garage, and a bonus space that could double as your dream hangout, this traditional house plan brings serious main-character energy.
Let’s dive into what makes this home plan more than just square footage—it’s a whole lifestyle.
A Living Space That Actually Lives
This house doesn’t just have a great room—it lives up to the name.
Designed with built-ins flanking a cozy fireplace, the space is open to both the kitchen and breakfast room, creating a flow that makes daily life smoother.
Whether you’re binge-watching with the family, hosting a game night, or dancing while making pancakes (we don’t judge), this layout adapts to your rhythm.
Open concept means less running back and forth between rooms and more connection.
Before you fall in love with the perfect floor plan, take a moment to consider the financial side. Comparing mortgage rates, improving your credit score, and working with a reliable real estate agent can save you thousands. Look into home insurance, consider a home warranty, and plan ahead for refinancing. It all adds long-term value to your home.
It also boosts your property value, making this home not only functional but also a wise investment.
And let’s face it, if you’ve been watching mortgage rates lately, getting the most out of your home matters more than ever.
Grill, Chill, and Repeat
Imagine this: French doors swing open, and boom—you’re on your private grilling porch.
This isn’t just a slab of concrete with a sad charcoal grill.
No, this is the big leagues.
Think outdoor fireplace, room for a grill setup, maybe even a built-in smoker if you’re feeling fancy.
Outdoor kitchens are one of the top features boosting resale and comfort these days.
With smart upgrades and the right layout, this porch can be transformed into an entertainer’s paradise.
Add smart home technology—like automated lights or speakers—and suddenly, your backyard barbecue feels like a resort experience.
Comfort, Convenience, and Laundry Goals
The master suite in this house isn’t just a bedroom—it’s a retreat.

Tucked away from the other rooms, it offers privacy, peace, and enough space to do a cartwheel (again, no judgment).
The bathroom is spacious, elegant, and spa-worthy, and the walk-in closet is practically begging for a shopping spree.
But the real cherry on top?
The closet connects directly to the laundry room.
I don’t know who came up with this genius idea, but they deserve an award.
No more hauling laundry across the house like you’re starring in a domestic survival show.
This is high-end living with practical perks—like choosing the best home insurance or securing a home warranty to protect your dream home.
Work Smarter, Not in the Kitchen
If your “home office” is currently a corner of the kitchen table with a laptop and a pile of stress, you’re in for a treat.
This house includes a dedicated office space that’s actually designed for focus and productivity.
With a door to shut out distractions and enough room for dual monitors, bookshelves, and that one chair you swear improves your posture, this space is ready for business.
Whether you’re closing deals, running a side hustle, or finally writing that novel, this office helps you get it done.
Plus, it can be optimized with smart home technology and even mapped out using interior design software to make it uniquely yours.
Bonus: If you’re working toward home loan pre-approval, having a quiet space to handle the paperwork is a total win.
A Kitchen Built to Impress (and Feed)
Let’s talk about the kitchen—because, let’s be honest, it’s the real MVP.
This space isn’t just beautiful; it’s practical, too.

With generous counter space, a center island, and easy flow to the breakfast room, this kitchen keeps everything—and everyone—within reach.
Whether you’re prepping for a holiday feast or grabbing a midnight snack, the layout supports all your culinary endeavors.
And if you’re planning a future refresh, you can use a building cost estimator to price out upgrades or even look into home improvement loans to fund the ultimate kitchen transformation.
4 Cars, Zero Compromises
Now for the dreamers, tinkerers, and anyone with more than one vehicle—this garage is the real deal.
With 1,680 square feet of space, it holds up to four cars and still leaves room for tools, bikes, or a makeshift workshop.
Or heck, park your lawn tractor in style.
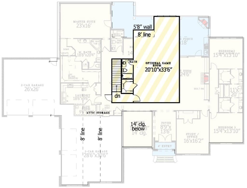
Above the garage?
A 947-square-foot bonus area that’s just waiting to become your home theater, gym, guest suite, or vintage pinball arcade (because why not?).
It’s the kind of flexible space that adds long-term value and keeps your options open.
Down the line, a quick chat with a home remodeling contractor could turn it into the coolest room in the house.
One-Level Living for Maximum Ease
This house plan gets major points for being entirely on one level—no stairs to climb, no laundry baskets to drag, and no baby gates to wrestle with.
It’s ideal for every stage of life, from toddlers to retirees, and everything in between.
As life evolves, this layout offers the kind of flexibility that makes living simpler.
Want to age in place?
Already covered.

Need to accommodate aging parents or guests with mobility issues?
Done.
One-level homes like this often hold their value better and appeal to a wider range of buyers when it’s time to sell—or just brag a little at the next neighborhood BBQ.
Built-In Confidence and Financial Smarts
Let’s be real: buying a home isn’t just about the pretty countertops or fireplace vibes.
It’s a major financial decision.
That’s why this plan offers the kind of features that support smart decision-making—from the spacious layout to the high-resale potential.
And while you’re exploring refinance mortgage options or calculating whether your credit score is ready for the leap, know that this house is already doing the heavy lifting in terms of long-term value.
Add in reliable home insurance, consider a home equity loan for future projects, and you’ve got a setup that supports both your lifestyle and your financial future.
The Bonus Space That Keeps on Giving
Back to that bonus room—because honestly, we can’t get enough.
Whether it becomes a guest haven, a teenager’s hangout, a hobby studio, or a storage utopia, it’s one of those spaces that grows with you.
Plus, having that extra square footage without sacrificing main-floor functionality?
That’s the kind of real estate magic that every good real estate agent dreams of showing off.
Whether you’re buying for today or planning for the long haul, this bonus space gives you room to adapt.
In a world of cookie-cutter floor plans and cramped layouts, this 3-bed, 3.5+ bath traditional house plan stands out for all the right reasons.
It’s spacious without being over-the-top.
It’s cozy without being cramped.
And it blends luxury and livability like few other designs can.

With smart design, future-ready features, and a layout that supports real life—plus perks like an outdoor kitchen, a peaceful home office, and room for four cars—this plan is the kind of purchase you won’t regret.
So if you’re on the hunt for a home that checks every box (and then some), this might just be the one.
Go ahead—dream big.
This plan’s already doing the hard part for you.
Choosing a house plan is just the beginning—what comes next can shape your future. Be sure to research mortgage rates, check your credit score, and work with a reliable real estate agent.
Protect your home with solid home insurance, a dependable home warranty, and keep an eye on future refinance options. Want to increase your property value?
Think solar panels, smart home upgrades, and energy-efficient appliances. And before construction starts, use interior design software to bring your vision to life, down to the last detail.










