Dual-Story 4-Bedroom Scandinavian Modern House with Flex Room (Floor Plan)

Specifications:
- 5,185 Sq Ft
- 3 – 4 Beds
- 4.5+ Baths
- 2 Stories
- 3 Cars
There are houses you admire from afar, and then there are homes that make you picture yourself moving in tomorrow.
This Scandinavian-inspired modern house plan falls firmly in the second category.
At 5,185 square feet with room for 3–4 bedrooms, 4.5+ baths, a flex room, and a spacious 3-car garage, it’s a home that balances simplicity, warmth, and modern comfort.



The Foyer That Welcomes and Impresses
The front entry sets the tone instantly.
With wide doors and a grand foyer, you’re met with a flood of natural light and a sense of openness.
The Scandinavian influence shines here with clean lines and uncluttered design, while the soaring ceiling gives an unmistakable “wow” factor.
It’s the kind of entrance that makes you proud of your purchase.
And let’s be honest, when you’ve worked with your real estate agent, secured home loan pre-approval, and finally step through this foyer, it feels like the reward for all those hours checking mortgage rates.

A Great Room Worth Gathering In
At the heart of the home lies the great room, and it more than lives up to its name.
Towering windows bring the outdoors inside, while the open connection to the dining and kitchen areas ensures family and friends can flow easily during gatherings.
Before you fall in love with the perfect floor plan, take a moment to consider the financial side. Comparing mortgage rates, improving your credit score, and working with a reliable real estate agent can save you thousands. Look into home insurance, consider a home warranty, and plan ahead for refinancing. It all adds long-term value to your home.
The fireplace anchors the space, adding coziness to the sleek modern lines.
With smart home technology, you can adjust the ambiance with just a touch—lights dim, music fills the room, and suddenly, the space transforms.

Great rooms like this are more than just beautiful—they add to the property value, making your investment feel even smarter.
The Kitchen Designed for Real Living
The kitchen is a dream come true for anyone who enjoys cooking—or at least pretending to while enjoying takeout on the island.
The oversized island doubles as prep space and a gathering hub, while the adjacent prep kitchen and pantry keep everything organized.
With interior design software, you can plan every cabinet, backsplash tile, and fixture to perfection before you move in.

Pair that with smart appliances, and this kitchen is both functional and future-proof.
It’s a space that makes you appreciate the thought behind the floor plan.
From daily breakfasts to big celebrations, the kitchen is ready for it all.
Covered Outdoor Living and Expansive Decks
One of the house’s showstoppers is the way it embraces outdoor living.
The covered outdoor living area extends directly from the great room, creating an indoor-outdoor connection that feels effortless.

Beyond that, spacious decks stretch across the rear of the home, leading to a patio that begs for summer barbecues.
This seamless flow adds to long-term property value and makes it the kind of home where memories are made.
It’s also a feature that future buyers will notice, strengthening your investment potential.
Master Suite: Privacy Meets Luxury
The master suite on the main level is nothing short of indulgent.

A private vestibule leads you into a spacious bedroom with enough room for a sitting area.
Two walk-in closets flank the passage to a spa-like bathroom, complete with dual vanities, a freestanding tub, and a luxurious shower.
It’s the kind of retreat that makes you grateful for good planning, whether you’re protecting it with home insurance or dreaming up future upgrades with a home remodeling contractor.
The design ensures comfort now and lasting appeal for years to come.
Flex Room for Every Stage of Life
Tucked neatly into the floor plan is the flex room—the unsung hero of modern design.

It can transform into anything you need: a home office, gym, media room, or guest space.
Its adaptability makes it invaluable as your life evolves.
And if you’re ever looking into home equity loans or refinance mortgage options to fund renovations, the flex room is the perfect place to invest.
Its potential keeps the house relevant no matter what stage of life you’re in.
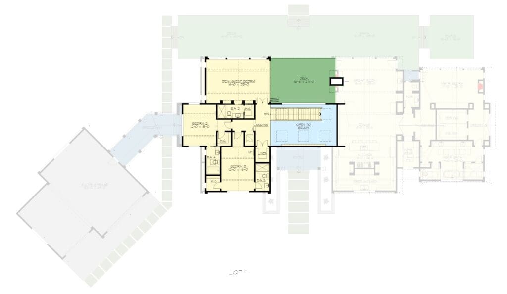
Upstairs Bedrooms with Private Comfort
The second story offers three bedrooms, each with its own bath and walk-in closet.

Privacy and comfort are priorities here, making it perfect for families, guests, or even long-term stays.
A den/guest room upstairs offers additional flexibility, while open-to-below spaces connect visually to the main level, creating that airy, Scandinavian lightness throughout.
The upstairs deck adds yet another special retreat spot—ideal for morning coffee or evening stargazing.
With 4.5+ baths in total, everyone gets their own space.
It’s a floor plan that eliminates the morning rush, making life feel just a little more civilized.

The 3-Car Garage and Breezeway
On the practical side, the 3-car garage is a feature you’ll appreciate daily.
Not only does it keep vehicles safe, but it also provides space for tools, bikes, and seasonal gear.
A breezeway connects the garage to the main home, offering both convenience and protection from the elements.
Pair the garage with the best home security system, and your belongings stay safe year-round.

It’s a feature that’s both functional now and appealing to future buyers when you consider property value and long-term investment.
Everyday Practicality
Scattered throughout the main level are those practical touches that make life easier: a large laundry room, lockers for coats and bags, powder baths, and extra storage.
These details might not steal the spotlight, but they’re the features that keep your household running smoothly.
Even when reviewing building cost estimators or talking with contractors, these spaces prove their worth.

They keep the floor plan livable, functional, and family-friendly.
An Investment in Lifestyle and Value
Beyond its beauty, this home is an investment in lifestyle.
The thoughtful design, flexible spaces, and Scandinavian influences make it appealing now and in the future.

Whether you’re protecting it with a home warranty, adding value with a remodeling project, or simply enjoying every square foot, the house supports both your present and your financial goals.
From credit scores to home loan pre-approval, buying a house like this requires planning.
But once you’ve purchased, the payoff is enormous—this is a home that appreciates both in daily life and in long-term property value.
This Scandinavian-Inspired Modern House Plan isn’t just 5,185 square feet of space—it’s a complete vision for modern living.

With 3–4 bedrooms, 4.5+ bathrooms, a flex room, and a 3-car garage, it balances elegance with functionality.
The flow of the great room, kitchen, outdoor living, and private retreats creates a home designed for both connection and comfort.
Buying a house like this isn’t just a purchase—it’s an investment in the way you want to live.
From its smart design to its future value, this floor plan is proof that a home can be stylish, practical, and forward-thinking all at once.
Choosing a house plan is just the beginning—what comes next can shape your future. Be sure to research mortgage rates, check your credit score, and work with a reliable real estate agent.
Protect your home with solid home insurance, a dependable home warranty, and keep an eye on future refinance options. Want to increase your property value?
Think solar panels, smart home upgrades, and energy-efficient appliances. And before construction starts, use interior design software to bring your vision to life, down to the last detail.










