Dual-Story 3-Bedroom Barndominium House with Oversized Shop (Floor Plan)

Specifications:
- 3,055 Sq Ft
- 3 Beds
- 2.5+ Baths
- 2 Stories
- 3 – 6 Cars
There are dream homes… and then there are homes so dreamy you start mentally arranging your furniture before you even find your socks.
That’s how I felt when I stumbled across this modern farmhouse plan.
It’s got everything: charm, space, style, and more porches than you’ll know what to do with.
Grab a cup of coffee (or a mortgage calculator) and let me walk you through this beauty.


With a sprawling 3,026 square feet, this isn’t just a garage; it’s a sanctuary for the car enthusiast, the weekend warrior, or the entrepreneur looking for warehouse space just steps from their coffee machine.
The three overhead doors ensure easy access, and that includes a behemoth 12′ by 14′ door.
Can you imagine the possibilities?
Whether it’s parking your fleet of classic cars or storing an RV, you’ve got space to spare.
Plus, the practical rain awning above keeps you dry on those drizzly mornings when you’re fumbling for your keys.
Now, swing around to the wraparound porch.
Before you fall in love with the perfect floor plan, take a moment to consider the financial side. Comparing mortgage rates, improving your credit score, and working with a reliable real estate agent can save you thousands. Look into home insurance, consider a home warranty, and plan ahead for refinancing. It all adds long-term value to your home.
It’s not just a porch; it’s an all-season, all-reason kind of porch.
Hosting a summer barbeque, enjoying a quiet autumn evening with a hot cider, or decorating lavishly for the holidays?
This porch accommodates all your whims with style and space.
It’s the perfect transition from the grandeur of nature to the comfort of home, and let’s be honest, it’s a killer backdrop for your social media photos.
Step inside, and you’re greeted by an open-concept layout that feels like a breath of fresh air.
The minimal walls between the kitchen, dining area, and living room create a fluid space that’s both inviting and practical.
Imagine entertaining guests: nobody’s ever out of the conversation, whether they’re chopping in the kitchen or chilling on the couch.
And speaking of the kitchen—hello, spacious island!
This isn’t just a meal prep area; it’s command central.

Plus, with a walk-in pantry nearby, you can stock up like you’re preparing for a reality cooking show.
Next to the kitchen, a quiet den awaits.
This can be your home office, a reading nook, or a playroom for the kids.
It’s strategically placed just off the entryway, making it accessible yet private enough to take those conference calls without interruption.
Let’s talk about the master suite.
Nestled on the main floor for convenience, it boasts a feature I wish I had: direct access to the laundry room through the walk-in closet.
Genius!
Gone are the days of hauling baskets across the house.
It’s all about efficiency here, and let’s be real, a little extra sleep on laundry day.
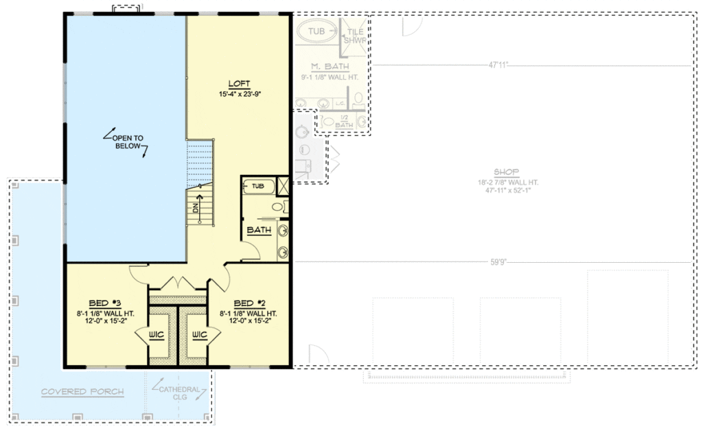
Ascending to the upper story of our Barndominium, the architectural magic continues with a loft that oversees the living space below.
This isn’t just any loft; it’s a versatile retreat that can transform into your home gym, a second living room, or an impromptu yoga studio—without missing any of the household buzz.
Imagine overseeing your domain from above, all while in the middle of a calming downward dog!
The loft connects to two generously sized family bedrooms, each boasting its own walk-in closet.
These aren’t just rooms; they’re sanctuaries for rest, study, or play.
The walk-in closets are a dream for fashion enthusiasts or simply for keeping clutter at bay.
No more excuses for messy rooms!
Each bedroom is designed with privacy in mind, positioned cleverly to ensure that everyone has their personal retreat without sacrificing connectivity to the home’s vibrant communal areas.
Now, let’s not forget the exterior finish of our Barndominium.
Clad in corrugated metal siding, this home is not only stylish but built to last.

The metal siding is practically maintenance-free, which means less time spent on upkeep and more time enjoying the home’s many amenities.
Plus, the rustic, industrial aesthetic of the siding makes the house a standout.
It’s like living inside your own modern fortress—but with all the cozy comforts of a family home.
What’s truly compelling about this home plan is the thoughtful integration of living and workspaces.
The oversized shop adjacent to the living areas ensures that hobbies, passions, or even a home-based business are just a short walk away.
This feature is a nod to modern lifestyles where the line between work and leisure often blurs.
Having such a facility within your home’s footprint is not just convenient, it’s a game changer for productivity and work-life balance.
And let’s circle back to that stunning wraparound porch.
Whether you’re watching storms roll in or enjoying the sunset, this outdoor living space adds an element of tranquility to the robust functionality of the house.
It’s a place to gather, reflect, and enjoy the simple pleasures of life, like a good book or a cup of coffee in the fresh air.
This 3-bedroom Barndominium-style house isn’t just a structure; it’s a lifestyle statement.
It combines the rugged charm of a barn with the sophisticated elements of modern design, creating a unique dwelling that’s as practical as it is beautiful.
Whether you’re a growing family, a busy professional, or someone who loves to entertain, this home adapts to your needs, providing both the space to gather and the privacy to retreat.

As we conclude our tour, it’s clear this house plan isn’t just about square footage or the number of rooms—it’s about creating a space where life’s moments, big and small, are celebrated.
From its expansive shop to the cozy nooks and communal areas, every inch of this home is designed to enhance your living experience.
If walls could talk, these would tell tales of laughter-filled gatherings, quiet mornings on the porch, and midnight snack raids to the kitchen.
It’s not just a place to live; it’s a place to thrive.
Choosing a house plan is just the beginning—what comes next can shape your future. Be sure to research mortgage rates, check your credit score, and work with a reliable real estate agent.
Protect your home with solid home insurance, a dependable home warranty, and keep an eye on future refinance options. Want to increase your property value?
Think solar panels, smart home upgrades, and energy-efficient appliances. And before construction starts, use interior design software to bring your vision to life, down to the last detail.










