Barn-Inspired 3-Bedroom 1-Story Country Home with 5-Bay Garage (Floor Plan)

Specifications:
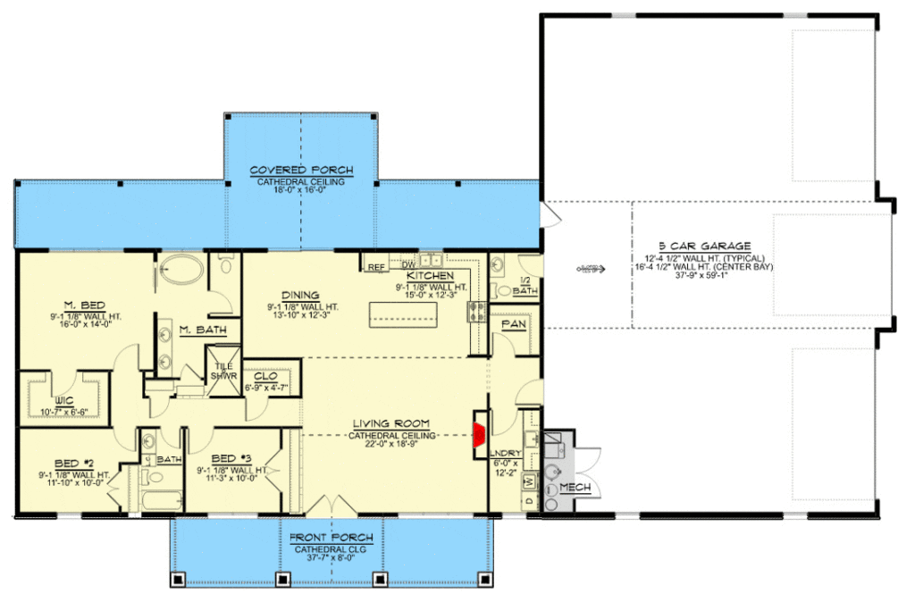
- 2,016 Sq Ft
- 3 Beds
- 2.5 Baths
- 1 Stories
- 5 Cars
There’s something about the charm of a barn-style home that just feels right—like fresh apple pie, or finding money in the pocket of jeans you haven’t worn since last fall.
I stumbled across this barn-inspired country home plan recently, and I’ve been mentally furnishing it ever since.
It’s a cozy 2,016 square feet of well-thought-out living space, topped off with a jaw-dropping 5-bay garage.
Whether you’re planning your first home purchase or dreaming of the perfect countryside escape, this house plan might just be the answer to your (real estate) prayers.


Country Charm Meets Modern Practicality
Let’s talk curb appeal first.
With corrugated metal siding and a shape inspired by classic American barns, this home blends nostalgia with sleek, rustic character.
But the real showstopper?
That 5-bay garage.
Seriously, it’s like a dream garage for anyone who collects cars, runs a home workshop, or just hates parking on the street.
And, since it includes a powder bath, you won’t need to run across the house mid-project with grease on your hands.
Before you fall in love with the perfect floor plan, take a moment to consider the financial side. Comparing mortgage rates, improving your credit score, and working with a reliable real estate agent can save you thousands. Look into home insurance, consider a home warranty, and plan ahead for refinancing. It all adds long-term value to your home.

Practical and thoughtful.
From a property value perspective, unique features like this garage are serious winners.
Not only do they bump up functionality, but they can sweeten the deal for future buyers should you decide to sell.
In other words, this isn’t just a place to live—it’s an investment in lifestyle and long-term value.
Come On In—The Porch is Just the Beginning
The 8-foot-deep front porch is more than a pretty face.
It’s your first taste of easy, country living.
Picture a couple of rocking chairs, a glass of iced tea, and a few lazy dogs napping in the sun.

Step through the front door, and you’re greeted by an open-concept living space that’s begging for a little personalization (thank goodness for interior design software that lets you test drive your wildest decorating ideas without lifting a single piece of furniture).
Inside, the living room’s cathedral ceiling creates a bright, airy feeling, while the fireplace on the right wall anchors the space with cozy warmth.
It’s the kind of room that works whether you’re hosting a holiday dinner or just binge-watching a guilty pleasure.
Plus, that tall ceiling adds just the right amount of drama without needing any fancy upgrades.
Kitchens That Make You Want to Cook (Even on a Weeknight)
Ah, the kitchen—where magic (or at least dinner) happens.

This plan features an L-shaped kitchen that wraps around a spacious island, giving you ample counter space whether you’re meal-prepping or balancing a laptop while pretending to work.
The adjacent dining area flows naturally from the kitchen and includes a pair of sliding doors that open to the long, covered back porch.
Weekend BBQs?
Yes, please.
Open layouts like this one aren’t just trendy—they’re smart.
They make the most of square footage and create a natural flow that makes daily living feel seamless.
And if you’re thinking about adding smart home technology to your setup, this space is tailor-made for it.

From smart fridges to automated lighting, the open concept allows tech to integrate beautifully without overwhelming the homey charm.
Bedrooms That Balance Privacy and Practicality
Head down the hallway, and you’ll find a rear-facing master bedroom that offers a peaceful escape from the hustle and bustle.
It’s tucked away, giving you privacy when you need it most.
The attached bathroom is just as impressive, with a pocket door leading into a full five-fixture layout.
So yes, you get your double vanity, a soaking tub for those “I’m not moving today” evenings, and even a linen closet for stashing all those fluffy white towels.
Bedrooms 2 and 3 are located on the other side of the hall and share a full bathroom.
If you’ve got kids, guests, or even a home office dream, this setup works wonders.

It balances convenience with separation, giving everyone a bit of breathing room.
Design That Works (and Works Hard)
Every inch of this plan feels intentionally crafted.
With 2×6 exterior walls using conventional wood framing, the build offers structural integrity while leaving room for energy efficiency upgrades (hello, lower home insurance premiums).
That solid construction pairs beautifully with the barn-style exterior and modern interiors, making it easier to qualify for a home loan pre-approval if you’re working with a lender who values quality construction.
And let’s not forget about affordability.
Building this home doesn’t mean selling a kidney or sacrificing your dreams of travel.

Tools like a building cost estimator can help you figure out what this beauty would cost to bring to life on your lot—and help you plan for materials, finishes, and maybe even a home improvement loan if you want to go the extra mile on customization.
The Garage That Deserves Its Own Zip Code
Yes, we’re back to the garage—because five bays deserve extra attention.
This isn’t your run-of-the-mill “barely fit two cars” setup.
This is a paradise for gearheads, hobbyists, small business owners, or anyone who’s tired of renting a storage unit for their toys.
And since this kind of unique feature isn’t super common, it can seriously boost your property’s desirability if you ever list it with a real estate agent.
It’s also a great example of smart investment—spending now to create functionality you’ll appreciate for decades.

Plus, that powder bath out there?
Talk about thoughtful.
It keeps traffic out of the main house and gives your garage space real usability.
Protecting the Dream (Because Life Happens)
Let’s face it: owning a home—even one this charming—means being prepared for the unexpected.
A solid home warranty can save your bacon if appliances break or systems fail.
Combine that with good home insurance, and you’ve got the peace of mind to actually enjoy your space without living in fear of the next leaky pipe or fried circuit.
This home also lends itself well to future financial flexibility.
With steady mortgage rates (or after you refinance your mortgage), you might be surprised at how affordable it is to maintain a property like this.

And as you build equity, a home equity loan could help fund renovations, upgrades, or even that dream outdoor kitchen you’ve been obsessing over on Pinterest.
Whether you’re buying your first home or your forever home, this barn-inspired ranch checks all the right boxes.
It’s functional, stylish, and versatile—with enough charm to make you want to stay in on a Friday night (willingly).
And let’s not forget how this layout makes life easier.
It’s single-story living at its finest, with the kind of flow that supports everything from Sunday morning pancakes to late-night laughs around the fire.

So if you’re looking for a plan that feels like home from the moment you walk in—and continues to pay dividends (financial and emotional) for years to come—this one deserves a serious look.
Just don’t be surprised if your friends start dropping hints about visiting… and staying.
After all, when you find a house plan that nails comfort, value, and that rare mix of practicality and personality, you don’t just buy it.
You live it.
Choosing a house plan is just the beginning—what comes next can shape your future. Be sure to research mortgage rates, check your credit score, and work with a reliable real estate agent.
Protect your home with solid home insurance, a dependable home warranty, and keep an eye on future refinance options. Want to increase your property value?
Think solar panels, smart home upgrades, and energy-efficient appliances. And before construction starts, use interior design software to bring your vision to life, down to the last detail.










