8-Bedroom 2-Story Luxury Farmhouse With Extra Storage (Floor Plan)

- 3,406 sq. ft.
- 8 Beds
- 6 Baths
- 2 Stories
This modern farmhouse duplex doesn’t just give you four walls and a roof; it delivers charm, comfort, and practicality with a dash of sophistication.
And not in a “cute wallpaper” kind of way, but in a full-blown pack the boxes, I’m ready to move sort of way.
Now, let’s dig into the features that make this plan shine—and along the way, I’ll sprinkle in the real-world details we all think about, like mortgage rates, home insurance, and how to make sure your investment works for you.
I’ll be the first to admit it—I’ve fallen in love with this house plan.
It’s the kind of home that makes you want to invite the neighbors over for barbecue just so you can casually show off your new porch.


A Duplex That Doubles the Charm
One of the best parts about this design is that it’s a modern farmhouse duplex. That means you get two matching living spaces under one roof, connected by a breezeway.
Each side offers 4 bedrooms and 3 bathrooms, making it ideal for extended families, investment properties, or even living on one side and renting out the other.
And here’s the kicker: when you work with a real estate agent, they’ll tell you that properties like this often hold incredible property value because they combine flexibility with timeless curb appeal.
Whether you’re looking to buy, rent, or simply keep it in the family, this floor plan makes for a smart investment.
First Impressions That Last
Walk up to the front porch and you’ll instantly feel the “farmhouse welcome.” Each unit shares front and rear porches, so you’ll never be short on outdoor space for rocking chairs, potted plants, or friendly chats with your neighbors.
Step inside, and the den greets you with a staircase and a stone fireplace—a focal point that practically begs for cozy nights in.
Before you fall in love with the perfect floor plan, take a moment to consider the financial side. Comparing mortgage rates, improving your credit score, and working with a reliable real estate agent can save you thousands. Look into home insurance, consider a home warranty, and plan ahead for refinancing. It all adds long-term value to your home.
The open feel is amplified by the eat-at kitchen bar, which connects the den to the living room.
And yes, that island isn’t just for show; the kitchen sink faces forward toward the family room, meaning you can wash dishes while still keeping an eye on the conversation—or your kids’ snack raids.
With the walls of glass framing the porch and backyard views, natural light becomes your new best friend. That’s where smart home technology comes in handy, by the way.
Program those blinds, set up automated lighting, and you’ve instantly got the best home security system keeping watch while you enjoy the view.
Kitchens That Work as Hard as You Do
I have to pause for a second on this kitchen setup because it deserves applause. Not only does it have a spacious island, but you also get both a walk-in pantry and a butler’s pantry.
That means room for bulk shopping, seasonal bakeware, and the snacks you swore you wouldn’t eat in one sitting.
And if you’re using interior design software to plan your dream kitchen layout, you’ll quickly realize how customizable this space can be.
From farmhouse sinks to quartz counters, it’s basically a Pinterest board waiting to happen.
For those considering financing options, remember that kitchen upgrades can often be wrapped into home improvement loans—a lifesaver when you’ve got your eye on the top-of-the-line appliances.
And trust me, a killer kitchen is one of the easiest ways to boost property value.
A Master Suite That Actually Feels Sweet
Downstairs, the main-floor master suite is a dream. A private bathroom, personal closet, and—because this house doesn’t skimp—a tray ceiling that adds a touch of elegance.

Plus, there’s direct access to the back porch. Morning coffee outside? Yes, please.
Every bedroom in this house comes with a walk-in closet, which means no more fights over who gets the “big one.”
And when you’re thinking long-term, walk-in closets are a perk that keeps paying dividends for resale value.
Now, here’s where practical life sneaks in again: a master suite on the main floor is also a win when thinking about home loan pre-approval or even a future home equity loan.
Why? Because it makes the home more appealing to buyers of all ages, from young families to retirees, which strengthens the overall investment potential.
Upstairs Retreats With a View
Head upstairs and you’ll find bedrooms 2 and 3, complete with picture windows that don’t just let in light but frame the views outside.
A shared bathroom makes it practical, while the upstairs layout keeps things cozy.
This is the kind of space where you can see your kids growing up, or maybe even set aside one bedroom for a home office or hobby space.
If you’re working with a home remodeling contractor down the line, you might even choose to turn one of these upstairs rooms into a custom library or media room.
Outdoor Living Done Right
Porches are where farmhouse dreams come alive, and this design nails it. The rear covered porch flows seamlessly into the breezeway, creating a space that’s perfect for barbecues, family gatherings, or just sitting outside with a good book.
And let’s not forget the dedicated barbecue porch. Yes, this house practically demands you fire up the grill and try out that new recipe you found online.
Outdoor living like this is exactly what makes a house feel like a home—and it’s the kind of detail that adds measurable property value too.
Now, if you’re planning out your budget for furniture, landscaping, and maybe even an outdoor kitchen setup, a building cost estimator can help keep you on track.
After all, you don’t want to overspend on patio furniture and then realize you forgot about the grill!
A Duplex Designed for Flexibility
What really excites me about this house plan is its flexibility. Want to live in one side and rent out the other? Go for it. Thinking about sharing with family but still want separate spaces? Done.
Looking for a property that holds up as both a home and a long-term investment? You’ve found it.
From the matching layouts to the side-load garage (perfect for a corner lot), every detail was designed with practicality in mind.
And if you’re ever unsure about design choices or want to visualize upgrades, interior design software and a trusted home remodeling contractor can help bring those ideas to life.

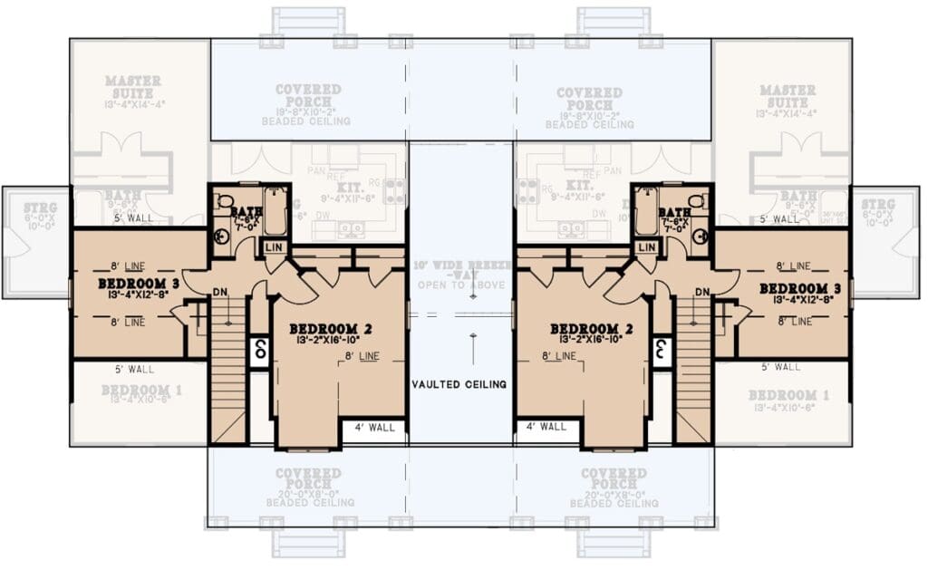
Upstairs Bedrooms With Style and Function
The second floor of this modern farmhouse duplex delivers charm in spades. Bedrooms 2 and 3 share a full bathroom, creating a private retreat that feels separate from the busy first-floor living spaces. Each bedroom comes with a walk-in closet and large picture windows.
That’s not just good design—it’s also the kind of detail that enhances property value. Imagine waking up to natural light flooding the room while still enjoying the privacy of a tucked-away upper floor.
These upstairs bedrooms make the home ideal for families with kids, teens, or even frequent guests.
If you decide to purchase the home as an investment, renters will appreciate the balance between open living downstairs and cozy retreats upstairs.
It’s the kind of design that makes a duplex stand out on the market, which any seasoned real estate agent will tell you.
The Master Suite: A Farmhouse Haven
On the main floor, the master suite delivers everything you’d want in a private retreat. A tray ceiling adds architectural flair, while direct access to the back porch means morning coffee outdoors is just steps away.
And let’s not forget that generous walk-in closet—no more cramped storage or awkward seasonal clothing swaps.
The ensuite bathroom provides convenience and comfort, while the overall suite design makes life simpler for homeowners who don’t want to constantly run up and down the stairs.
In terms of long-term planning, this kind of master suite layout appeals to a wide range of buyers, boosting property value and making future resale easier.
And for your own peace of mind, pairing this dream space with solid home insurance and a home warranty ensures it stays as perfect as the day you move in.
Open Layout for Everyday Living
The heartbeat of this house plan is its open layout. The kitchen flows into the family room and dining area, creating a central hub where everyone gathers.
From weeknight dinners to weekend parties, the design encourages togetherness while still providing enough breathing room for everyone.
The family room fireplace anchors the space, offering warmth and character. Meanwhile, the kitchen island—with its forward-facing sink—ensures no one is cut off from the conversation.
It’s functional design at its best, and if you’ve ever played around with interior design software, you’ll know how easy it is to visualize different furniture arrangements and finishes in a setup like this.
And here’s the bonus: if you ever decide on upgrades, home improvement loans or a home equity loan can help bring those ideas to life.
The open plan is a perfect canvas for future personalization, whether it’s upgraded finishes or expanded storage.
Kitchens Built for Real Life
Let’s be honest—kitchens make or break a home. This one nails it with a walk-in pantry and a butler’s pantry. Whether you’re stocking up for the holidays or just keeping enough snacks to satisfy the entire block, this kitchen has you covered.

The eat-at bar connects the den and living spaces, which is perfect for casual meals or supervising homework while you cook. And since the kitchen is a centerpiece in any home’s investment potential, these features matter.
A smart remodel with a trusted home remodeling contractor can further elevate the space, and financing options like a refinance mortgage make it possible without stretching your budget too thin.
Outdoor Living That Expands Your Space
One of the defining features of this farmhouse duplex is its commitment to outdoor living. Front and rear porches welcome family and friends, while the breezeway connects both units in style. The barbecue porch is the star, giving you a dedicated space to grill and gather.
This isn’t just about charm—it’s also about functionality. Outdoor living spaces add usable square footage without the same costs as interior construction.
And if you’re careful with planning using a building cost estimator, you can create an outdoor oasis without overspending. Plus, porches are a huge selling point when you decide to buy or sell—they boost curb appeal and make homes unforgettable.
Side-Load Garage for Corner Lot Appeal
Practicality meets design with the side-load garage, which makes this home especially suitable for a corner lot. Instead of a garage dominating the front view, you get a clean, welcoming façade that highlights the farmhouse charm.
For families, it’s not just about looks—the garage also provides functionality with easy access and extra storage space.
If you’re planning to use this property as an investment, details like a well-placed garage matter. They add curb appeal, which is something both buyers and renters notice instantly.
A real estate agent will likely point out how little touches like this set the property apart in competitive markets.
Bonus Space and Future Possibilities
The optional bonus space is the cherry on top of this design. It’s flexible, which means you can finish it when you’re ready—or leave it for later. Need a media room, craft space, or guest suite? This area adapts to your life.
If you’re considering finishing the bonus space after moving in, working with a home remodeling contractor and financing with home improvement loans can make the transition seamless.
It’s a smart move that not only enhances your daily life but also increases your property value down the road.
A Duplex With Built-In Flexibility
What makes this plan truly stand out is its ability to adapt. Each unit is a mirror image of the other, giving you options: live in one and rent the other, buy with extended family, or simply use both sides as a large multigenerational home.
In terms of investment, it’s hard to beat. You get flexibility, security, and long-term potential all in one.
For financing, securing home loan pre-approval puts you ahead of the game when it’s time to make an offer. Keeping an eye on mortgage rates helps lock in a deal that keeps payments manageable.
And if you ever need to adjust, a refinance mortgage can help you adapt without giving up the dream.
The Big Picture: Why This Plan Works
This modern farmhouse duplex isn’t just about square footage—it’s about lifestyle. The open layout fosters connection, the master suite delivers privacy, the porches expand living space, and the garage and bonus areas add practicality.

Every corner of the plan has been designed with modern families in mind, blending comfort with long-term investment value.
Pair all of this with smart planning—protecting your home with home insurance, upgrading when needed with home improvement loans, and budgeting wisely with a building cost estimator—and you’ve got more than a home. You’ve got peace of mind.
This farmhouse duplex has everything today’s buyers want: charm, function, flexibility, and room to grow. It’s a home that looks good, feels good, and works hard for you every single day.
From its airy living spaces to its barbecue porch, it was designed to blend beauty with practicality.
So whether you’re looking to buy your forever home, make a smart purchase that doubles as an investment, or simply fall in love with a plan that feels timeless, this design is the one you’ll keep coming back to.
Choosing a house plan is just the beginning—what comes next can shape your future. Be sure to research mortgage rates, check your credit score, and work with a reliable real estate agent.
Protect your home with solid home insurance, a dependable home warranty, and keep an eye on future refinance options. Want to increase your property value?
Think solar panels, smart home upgrades, and energy-efficient appliances. And before construction starts, use interior design software to bring your vision to life, down to the last detail.










