6-Bedroom Modern Farmhouse With Courtyard Garage and Flexible Bonus Suite (Floor Plan)

- 3,277 sq. ft.
- 4 – 6 Beds
- 4.5 – 6.6 Baths
- 2 Stories
- 3 Cars
Let’s be honest—buying or building a home is like dating. You want the one with timeless charm, brains, and a bit of spice.
Well, I may have just found “the one” in this modern farmhouse house plan.
With a cozy-yet-luxurious vibe, smart design features, and enough space to host Thanksgiving and hide from it when needed, this house checks every box.
It’s functional, it’s beautiful, and it’s secretly tech-savvy—like a Southern charmer who just happens to know coding.
Let’s dive into this dream home that combines all the right curves (hello tray ceilings!) with brains (smart home tech!) and heart (a family room fireplace you’ll never want to leave).



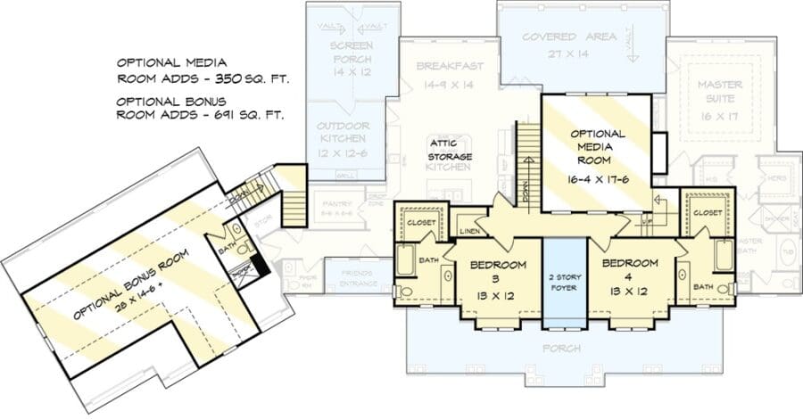
Open-Concept Living That Actually Works
Gone are the days of walled-off kitchens and chopped-up living spaces. This modern farmhouse embraces the open-concept lifestyle, where the kitchen flows seamlessly into the family room and dining areas.
Trust me, it’s not just pretty—it’s practical. Whether you’re entertaining guests or supervising homework while simmering spaghetti sauce, this setup makes multitasking feel like a breeze.
And let’s talk about that kitchen. The island isn’t just for show—it’s the MVP of the entire floor plan. With the sink facing forward into the family room, you can do the dishes and still be part of the action.
No more missing plot twists during movie night or ignoring someone’s story about their “really weird dream.” Bonus: It also makes you feel like you’re on a cooking show. Just try not to drop the eggs.
If you’re thinking about the purchase price of a home like this or how it fits with today’s mortgage rates, you’re not alone.

With soaring home values in some areas, it’s crucial to lock in a good rate or even explore your options to refinance your mortgage down the road. Building or buying smart gives you more room to breathe—financially and literally.
Before you fall in love with the perfect floor plan, take a moment to consider the financial side. Comparing mortgage rates, improving your credit score, and working with a reliable real estate agent can save you thousands. Look into home insurance, consider a home warranty, and plan ahead for refinancing. It all adds long-term value to your home.
Fireplace Feels & Functional Flow
I don’t care how high-tech we get—nothing beats the cozy charm of a crackling fireplace. This plan has the fireplace thoughtfully placed in the family room, making it a warm, welcoming heart of the home.
And it’s visible from the kitchen, so even dinner prep feels like a Hallmark moment.
The foyer gives guests a warm welcome, with clear sightlines all the way to the back of the house. You know that moment when someone walks in and instantly says, “Wow”? Yeah, this is that kind of foyer.
Built-ins surrounding the fireplace add both storage and style. Whether you fill them with books, vases, or quirky travel finds, they give the room a curated feel without needing a degree in interior design software to figure out what goes where.

A Master Suite Worth Bragging About
I’ve seen master bedrooms, and then I’ve seen this master suite. First off, it has double tray ceilings. Not just a tray ceiling. Double.
It feels elegant without being over-the-top, like the architectural equivalent of a really great haircut.
But it’s not just about looks—the master suite has two walk-in closets (yes, “his and hers” if you’re feeling traditional), and direct access to the back porch.
Want to sip coffee in your pajamas on a quiet morning? This layout was made for it.
The thoughtful split-bedroom design also adds a layer of privacy. The kids, guests, or in-laws are tucked on the other side of the house, which honestly should be listed under “mental wellness features.”

Now, speaking of smart investments, this layout can increase property value and make your home feel like a daily vacation.
It’s a layout designed not just for now, but for long-term living—something any real estate agent would gush over.
Outdoor Living Spaces That Don’t Just “Add On”—They Shine
Outdoor living isn’t just a trend—it’s a lifestyle. This plan delivers with not one, but multiple outdoor spaces.
Let’s start with the covered back porch that’s accessible from the master suite and family room.
It’s perfect for early morning yoga, late-night wine, or just lounging with a book while the dog sunbathes.

Then there’s the screened porch—aka bug-free heaven.
I don’t know who needs to hear this, but al fresco dining shouldn’t come with mosquito bites.
Add in an outdoor kitchen and barbecue area, and suddenly your backyard becomes the most popular dinner spot in town.
Even better? With a layout this dreamy, you can boost your home equity loan potential by adding outdoor upgrades down the line—fire pit, anyone?
Here’s the thing: No one ever regrets having more storage. And this home brings the goods.

Storage, Pantries & All the Hidden Gems
There’s a walk-in food pantry that’s perfect for Costco hauls, midnight snacks, and hiding the Halloween candy from your kids (or yourself).
Then, we’ve got a separate butler’s pantry—ideal for setting up a beverage bar, extra appliances, or hosting prep.
And if you’ve ever played the game “guess which cabinet the blender’s in,” you’ll appreciate the thoughtfulness of these spaces.
Let’s not forget the optional bonus space. Whether you turn it into a gym, home office, guest room, or the world’s greatest nap cave, it’s nice to know you have that flexibility.
It’s an excellent way to stretch your budget and get even more bang for your buck—especially when working with a building cost estimator to plan for future finishes.

Garage Goals & Corner Lot Perks
Can we just appreciate a garage that works with your lot instead of against it? This home features a side-load garage, making it perfect for corner lots.
It adds instant curb appeal and that little bit of polish that screams, “Yes, I have it together.” (Even if you’re still wearing pajama pants during your 9 a.m. Zoom call.)
There’s also an optional bonus room above the garage, which is begging to become a media room, craft space, or teen hangout zone. The flexibility makes it feel like a truly custom home, not a cookie-cutter plan.
And since we’re dreaming big—don’t forget the value of home insurance and a solid home warranty to protect everything you’re building here. It’s not just about buying a house; it’s about investing in a lifestyle.

A good home remodeling contractor could even help you bring your future upgrades to life as your needs evolve.
Upstairs: Where Fun Meets Function
Heading upstairs, we find two well-sized bedrooms perfect for kids, guests, or your growing investment in family space.
These rooms offer walk-in closets, and easy access to a full bath. It’s the kind of setup that keeps everyone happy and morning traffic to a minimum.
Now, let’s talk about the optional media room. Whether you’re a Netflix binger, a home theater snob, or just need a designated snack-eating area with surround sound, this space is prime real estate.

A smart addition that boosts your property value, this room could also double as a game room, workout space, or a quiet study nook for those taking Zoom classes in pajamas.
And speaking of versatility—above the garage sits an optionally finished bonus room. Think of it as your personal creative sandbox. Need a fifth or sixth bedroom?
You got it. Want a home gym with smart mirrors and voice-activated lighting? Easy. With the right smart home technology, this space can transform to suit your needs.
Smart, Stylish, and Secure
Let’s take a moment to talk about security. You’re building this dream home—so you want to protect it. Thankfully, the layout supports the integration of the best home security system without compromising the farmhouse aesthetic.

Discreet camera placement, smart locks, and connected lighting systems are easy to incorporate thanks to the thoughtful design.
And if you’re using interior design software to visualize everything from security placement to sofa sizes, the open layout makes planning a dream. You can get creative without being boxed in by awkward walls or odd corners.
All these upgrades don’t just feel good—they’re smart financially, too. With today’s housing market, many buyers are turning to home improvement loans to add long-term value to their properties.
Upgrading early and with purpose can increase resale potential, enhance daily living, and give your home that extra edge.

So, here we are. You’ve just toured a modern farmhouse that’s as smart as it is stunning. You’ve got space to grow, features to love, and the flexibility to make it truly yours.
From the moment you step into the foyer and see that view straight to the back porch, you know this isn’t just a house—it’s a lifestyle.
Whether you’re making a purchase for now, a strategic investment for the future, or building the home your kids will bring their kids to someday—this plan delivers. It blends beauty, functionality, and future-readiness with grace.
And hey, if you’ve made it this far, you might already be picturing your furniture in the family room, your dog sunbathing on the porch, or your famous chili simmering in that open-concept kitchen.
It’s more than a house. It’s your story, just waiting to be built.
Choosing a house plan is just the beginning—what comes next can shape your future. Be sure to research mortgage rates, check your credit score, and work with a reliable real estate agent.
Protect your home with solid home insurance, a dependable home warranty, and keep an eye on future refinance options. Want to increase your property value?
Think solar panels, smart home upgrades, and energy-efficient appliances. And before construction starts, use interior design software to bring your vision to life, down to the last detail.










