6-Bedroom 2-Story New American Home with False Chimney and a Home Office (Floor Plan)

Specifications:
- 4,813 Sq Ft
- 4 – 6 Beds
- 4.5 – 6.5 Baths
- 2 Stories
- 3 – 4 Cars
Every home plan tells a story, and this one feels like a bestseller.
With 4,813 square feet of carefully thought-out space, a whimsical false chimney, and an office that makes working from home downright enjoyable, this design blends charm with function.
If you’re curious about how each level works together, let’s dive in—because this is one floor plan you’ll want to imagine yourself living in.




The Front Porch and Entry
The story begins on the covered front porch.
It’s broad, inviting, and full of potential for rocking chairs, planters, or a cozy spot to sip tea.
The porch sets the stage for the home’s welcoming feel, and it’s one of those classic details that makes buyers fall in love during a first showing.
It adds not only charm but also long-term property value, proving that even the smallest architectural details can be a smart investment.
The Great Room and Its Pass-Through Fireplace
Inside, the great room anchors the main level.
The open layout allows light and people to flow naturally, with the pass-through fireplace serving as both a design feature and a practical divider between spaces.

You can imagine family gathered here on winter evenings, or guests drifting between the room and the deck outside during summer parties.
Before you fall in love with the perfect floor plan, take a moment to consider the financial side. Comparing mortgage rates, improving your credit score, and working with a reliable real estate agent can save you thousands. Look into home insurance, consider a home warranty, and plan ahead for refinancing. It all adds long-term value to your home.
In terms of property value, this type of great room layout is timeless.
A real estate agent will always point out how much flexibility buyers get from open concept spaces, and this one checks every box.
The Kitchen Across from the Firelight
Directly opposite the fireplace sits the kitchen, which acts as the heart of the home.
Its placement makes it easy to cook while still being part of conversations happening in the great room.
Add the dining nook nearby, and you’ve got the perfect balance of casual and formal dining opportunities.
Interior design software makes it easy to picture how to furnish this space—whether you want a sleek modern island or a farmhouse-style breakfast table.

And since the dining area opens to a covered deck, outdoor meals become effortless.
It’s a floor plan detail that turns everyday dinners into memorable experiences.
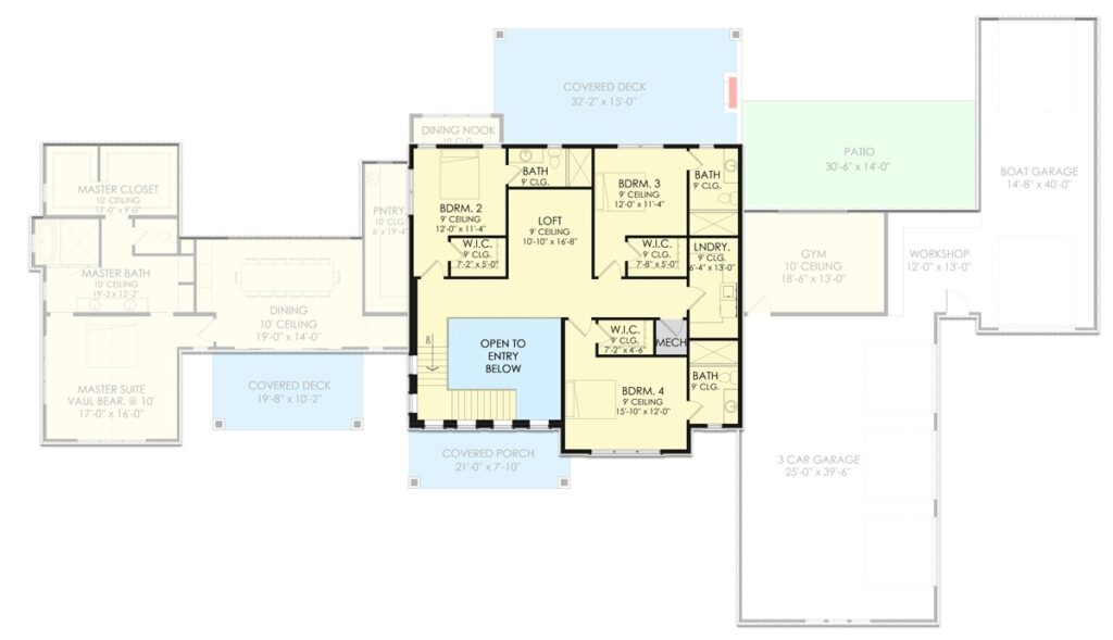
Master Suite Retreat on the Main Level
Tucked just off the dining area, the master suite delivers privacy and luxury.
The bedroom leads into a bathroom equipped with a standing shower, soaking tub, double vanities, and a walk-in closet that could handle any wardrobe.
This suite feels like a home within the home.
If you’ve ever worked with a home remodeling contractor to achieve this level of comfort, you know how expensive it can be.

Here, the design includes it from the start, saving you from relying on home improvement loans or dealing with endless construction dust.
It’s already built to impress.
Upstairs
The second floor continues the thoughtful design.
Three spacious bedrooms each have their own bathrooms and walk-in closets, eliminating morning rush-hour traffic jams.
In between them lies a loft that doubles as a homework space, reading corner, or even a casual hangout spot.
This layout is especially appealing for families.
It offers privacy for everyone while keeping the upstairs cohesive.

And if you’re looking at it from an investment angle, buyers are always drawn to homes where every bedroom feels like a mini-suite.
Dedicated Home Office Space
On the main level, the plan includes a dedicated home office.
With so many people working remotely, this feature is no longer optional—it’s essential.
The office is strategically placed to minimize distractions, while still being close enough to step into the heart of the home when it’s time to relax.
Pair this space with smart home technology, and you’ve got the ultimate professional setup.

Think video calls with natural light streaming in, or quiet hours for deep work.
From a building cost estimator’s perspective, incorporating an office into the plan now saves more money than converting a spare bedroom later.
Decks, Patios, and Outdoor Living
This plan takes outdoor living seriously.
The great room and dining room both open onto covered decks, creating natural extensions of the main floor.
These decks provide shelter from sun or rain, meaning they’re usable nearly year-round.
There’s also a patio off the gym, which makes post-workout fresh air easy to enjoy.
Outdoor living spaces like these aren’t just enjoyable—they also make the home more attractive for buyers down the line.

They’re the kind of details that add lasting investment value, making the purchase even more rewarding.
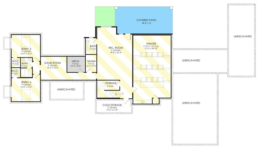
The Basement
If the main and upper levels weren’t enough, the basement expansion brings the plan to a whole new level.
At 2,495 square feet, it includes a recreation room, a theater for movie nights, a sauna for wellness, a game room for fun, and two more bedrooms.
There’s plenty of storage, too, which makes the basement both functional and entertaining.
This part of the plan is like a blank canvas—you can use interior design software to plan a theater layout or visualize how to decorate the recreation room.

Financing the basement finish could be managed through a refinance mortgage or even a home equity loan, allowing you to maximize the potential of the property without straining your credit score.
Modern Farmhouse Style with a Twist
The exterior design features metal and flat roofs combined with timber accents, giving the home its modern farmhouse aesthetic.
And then there’s the false chimney—a playful nod to tradition.
It may not function, but it adds undeniable character and charm.
Pair the style with the best home security system and a solid home warranty, and you have both peace of mind and visual appeal.

The exterior proves that a home can be as secure and practical as it is stylish.
A Floor Plan Designed for Now and Later
What ties this entire plan together is how it anticipates today’s lifestyle while leaving room for tomorrow’s needs.
Whether you’re enjoying the open concept great room now or finishing the basement later, the design evolves with you.
A home loan pre-approval might be the first step toward purchasing, but the long-term value lies in how this home works as both a residence and an investment.
From covered porches to flexible indoor spaces, every detail is intentional, ensuring that you’ll never outgrow the design.

At 4,813 square feet, this New American home plan is more than just a house—it’s a blueprint for living well.
From the welcoming porch to the luxurious master suite, from the practical upstairs loft to the entertainment-packed basement, it delivers on every level.
And while the false chimney might be there just for looks, everything else about this plan is built for real life.
It’s the kind of design that makes you want to buy, settle in, and call it home—knowing that you’ve made not just a purchase, but a lasting investment.
Choosing a house plan is just the beginning—what comes next can shape your future. Be sure to research mortgage rates, check your credit score, and work with a reliable real estate agent.
Protect your home with solid home insurance, a dependable home warranty, and keep an eye on future refinance options. Want to increase your property value?
Think solar panels, smart home upgrades, and energy-efficient appliances. And before construction starts, use interior design software to bring your vision to life, down to the last detail.










