6-Bedroom 2-Story Modern Farmhouse With Bonus Room and 3-Car Front Garage (Floor Plan)

Specifications:
- 7,745 Sq. Ft.
- 6 Beds
- 8.5 + Baths
- 2 Stories
- 3 Cars
Let me just say this up front: if you’ve ever dreamed of owning the kind of house that makes your friends gasp and your in-laws (finally) say “Wow,” then this house plan might just be the one.
We’re talking grand entrances, double islands, ceilings that reach for the sky, and a floor plan so generous it feels like it gives you a hug when you walk in.
I’ve been swooning over this Mountain Craftsman-style modern farmhouse.
And trust me–by the time I’m done, you’ll be picking out backsplash tile and scoping out mortgage rates.


A First Impression That Wows
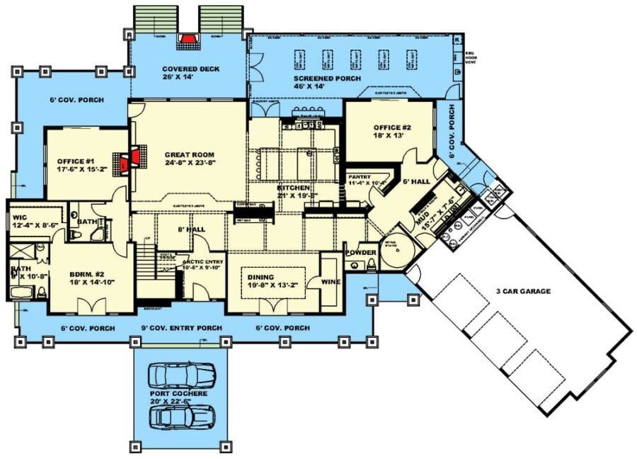
From the moment you roll up to the porte-cochere, this home tells you it means business—classy business.
The angled 3-car garage adds a custom feel, perfect for a corner lot, while the front entrance tucked behind the covered structure says, “I’m fancy, but I’m approachable.”
And if you’ve been checking mortgage rates while dreaming of a forever home, this plan just might make you want to hit that home loan pre-approval button today.
Step through the front door and you’re greeted by soaring ceilings, natural light spilling through massive windows, and a layout that flows better than my favorite Spotify playlist. A
t the heart of it all? A double-island kitchen that gives “chef’s kiss” a whole new meaning.
Kitchen Goals: Double Island Life
I don’t know about you, but I’ve always wanted a kitchen that makes me feel like I belong on a cooking show.
Before you fall in love with the perfect floor plan, take a moment to consider the financial side. Comparing mortgage rates, improving your credit score, and working with a reliable real estate agent can save you thousands. Look into home insurance, consider a home warranty, and plan ahead for refinancing. It all adds long-term value to your home.
This one checks every box. You’ve got not one, but two islands—one perfect for prep and the other for entertaining, homework, or pretending you didn’t just order takeout again.
The walk-in pantry hides your snacks (and Costco hauls), while the butler’s pantry adds a classy touch for party prep or morning coffee stations.
And because someone thought this through, the sink in the island faces the family room fireplace.
So yes, you can wash dishes and still catch the game, watch your kids, or side-eye your dog trying to climb on the couch.
Combine that with sliding glass doors and walls of windows, and the inside practically blends with the outside—an indoor-outdoor harmony that’s ideal whether you’re throwing a summer party or just want some peace and quiet.
Family Room + Fireplace = Cozy Central
Let’s talk about that family room. It’s open to the kitchen (hello, flow), has a fireplace that brings all the cozy vibes, and ceilings that stretch up to 27’9”.

That’s not just tall—that’s “grand cathedral meets warm modern lodge” tall.
Add in access to the barbecue porch and you’ve got the kind of hangout space that makes home improvement loans worth every penny.
Speaking of the barbecue porch, this is no dinky little slab of concrete.
This is a thoughtfully designed outdoor space, partially screened to keep the bugs away while still letting in fresh air and mountain views.
Whether you’re sipping morning coffee or having your besties over for grilled steak and wine, it’s got you covered—literally.
The Smart Way to Live
This home isn’t just beautiful—it’s brilliantly designed. Need a home office? Boom—there are two, each with sliding doors to the porch so you can stretch your legs or sneak in a call while listening to the birds.
Need smart convenience? Add smart home technology to control lights, temperature, and even the sprinklers. Planning ahead with interior design software is easy with a layout this flexible and open.
We’re talking serious investment potential here. With multiple flex spaces, including a large bonus room and dual offices, this house can evolve with your lifestyle.
Working from home, homeschooling, or starting that Etsy business selling artisanal candles? You’re all set.
Bedrooms That Don’t Play Around
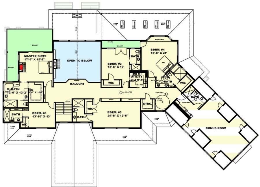
Now let’s get to the nitty-gritty: the bedrooms. All six of them. Each one includes a walk-in closet because nobody’s got time for tiny storage.
There’s even a guest suite on the main level—perfect for in-laws, visitors, or your best friend who “just needs a few nights” (and ends up staying for a month).
And upstairs? The master suite is a whole vibe. Tray ceiling? Check. Private balcony? Check. Access to the back porch? Oh, absolutely.

It’s designed like a boutique hotel suite, the kind that makes you wonder if you really need that weekend getaway after all.
Pair that with four secondary bedrooms upstairs, each with easy access to bathrooms, and your household has room to grow.
Whether you’re planning to buy now or think it’s a good investment for later, this house is ready to go the distance.
The Stairway That Stole the Show
Let’s start with the showstopper: the spiral staircase. I don’t know about you, but spiral staircases always make me feel like I’m in a rom-com or a grand European estate.
It’s not just a design flex—it’s functional too. A second, graceful way to travel between floors while adding serious style points? Yes, please.
Combine that with the main staircase and you’ve got a flow that’s perfect for big families, parties, or just avoiding that one squeaky step.
When it comes to designing homes that look good and work better, this plan nails it.
And if you’re using interior design software to play around with furniture layouts or choosing your dream chandelier to hang above the entryway, this space gives you every opportunity to shine.
A Master Suite Worth Waking Up In
Now, upstairs is where the magic continues. The luxury master suite is tucked away like a private sanctuary. Tray ceiling? Check. Spa-like bathroom? Of course.
But the real cherry on top is the private balcony—imagine stepping out every morning with a coffee in hand, breathing in fresh air while the world wakes up. Or ending your evening stargazing with a glass of wine. Not bad, right?
Oh, and did I mention access to the back porch? This suite is connected to the outdoors in a way that feels both indulgent and practical.
It’s also a major boost to your property value. If you’re ever considering resale—or just trying to impress the neighbors—you’ve got that covered.

Secondary Bedrooms With Big Personality
Aside from the dreamy master suite, there are four additional bedrooms upstairs. Each one is thoughtfully placed, spacious, and includes a walk-in closet. I know, I know—once you’ve had a walk-in, there’s no going back.
These bedrooms are ideal for kids, teens, guests, or even converting one into a home gym, craft room, or quiet reading space. Flexibility is the name of the game here.
With this many bedrooms, bathrooms, and living spaces, having home loan pre-approval lined up might just be your smartest move yet. You’re not just buying a house—you’re buying a future-proof lifestyle.
Bonus Room = Bonus Fun
Now let’s talk about that optional bonus space. At over 800 square feet, this isn’t some awkward attic-turned-gaming-room situation.
This is real, usable space that can transform into anything you need—media room, playroom, art studio, second living room, or maybe even a secret lair .
Whether you plan to finish it now or down the line, it adds massive value and flexibility.
And when you’re exploring options like a home equity loan or home improvement loans, this kind of feature becomes more than just a nice-to-have—it becomes an investment in your lifestyle.
Outdoor Living Like You’ve Never Seen
If you thought outdoor living was a couple of rocking chairs and a patch of grass, think again.
This home offers multiple porches, including a barbecue porch , screened-in areas for bug-free dining, and seamless transitions between indoor and outdoor spaces.
You can enjoy Sunday brunch on the back porch, roast marshmallows in the evening, or simply curl up with a good book while the breeze rolls in.
Want to install the best home security system? These defined entry and exit zones make that easy and effective.
And because outdoor living is becoming more important to buyers, this setup is another big boost to your home’s long-term property value.

Whether you’re actively looking to buy or just planning your future purchase, this modern farmhouse plan is the kind of home that stays on your mind. The perfect balance of comfort and class.
A layout that adapts to real life, not the other way around. And a design that inspires daily living without sacrificing functionality.
From boosting your credit score to exploring loan options or syncing your lighting with the smart home technology of your dreams, this house invites you to think big—and live even bigger.
So go ahead—imagine your furniture in the great room, your photos on the staircase wall, your friends on the porch, and your family making memories in every square foot. Because this isn’t just a house plan.
It’s the beginning of the best chapter yet.
Choosing a house plan is just the beginning—what comes next can shape your future. Be sure to research mortgage rates, check your credit score, and work with a reliable real estate agent.
Protect your home with solid home insurance, a dependable home warranty, and keep an eye on future refinance options. Want to increase your property value?
Think solar panels, smart home upgrades, and energy-efficient appliances. And before construction starts, use interior design software to bring your vision to life, down to the last detail.










