5-Bedroom 2-Story Modern Farmhouse With Finished Lower Level & Spacious Porches (Floor Plan)

- 4,469 sq. ft.
- 5 Beds
- 4.5 Baths
- 1 Stories
- 3 Cars
Buying a house is basically the adult version of choosing your forever home on Monopoly… only with more paperwork, slightly higher stakes, and far fewer top hats.
But if you’ve ever found yourself scrolling through endless house listings, wondering if your dream home even exists, let me introduce you to the plan that may just end your search.
A 5-bedroom, 2-story Modern Farmhouse-meets-Mountain Craftsman marvel that wraps charm, practicality, and straight-up wow factor into one stunning floor plan.
Right off the bat, the matching 10-foot-deep porches at the front and back of this home set the tone.
These aren’t just decorative porches where plants go to die—they’re real, livable extensions of your home.


A Porch Lover’s Paradise
Whether you’re sipping morning coffee while scanning mortgage rates on your phone, or throwing a barbecue that could make your real estate agent weep with joy, these porches deliver.
Both spaces are ideal for entertaining or just stretching out with a good book while pretending you’ve already refinanced your mortgage at that historically low rate your neighbor won’t shut up about.
Outdoor living is a major draw for boosting property value, and with this plan, it’s built right in—literally.
The Open Concept That Dreams Are Made Of
Step inside, and you’re greeted by a main level that is as open as a well-written check.
Seriously, the heart of this house beats strong with a huge, flowing space connecting the kitchen, family room, and dining area—perfect for hosting or herding your family without hitting a wall. Literally.
An elongated kitchen island with seating for eight makes it feel like your kitchen has its own amphitheater.
Before you fall in love with the perfect floor plan, take a moment to consider the financial side. Comparing mortgage rates, improving your credit score, and working with a reliable real estate agent can save you thousands. Look into home insurance, consider a home warranty, and plan ahead for refinancing. It all adds long-term value to your home.
It’s the kind of centerpiece that makes even the most skeptical home loan pre-approval officer want to slide that green light your way.
The island also happens to face the family room fireplace, so you can keep an eye on the kids and your soufflé. Multitasking level: unlocked.
Smart home technology fits in beautifully here, whether it’s voice-controlled lights for setting the perfect dinner ambiance or a connected oven that preheats before you’ve even left the grocery store parking lot.
And if you’ve ever wondered whether installing the best home security system could still look stylish, this house makes it easy—with lots of hidden spots for tech integration and cameras that don’t clash with the shaker-style charm.
Hidden Treasures: The Pantries
One pantry is great, but two? Now we’re talking real gourmet.

Behind rustic sliding barn doors, the walk-in food pantry is roomy enough for everything from bulk cereal to those “emergency” snacks that disappear within 48 hours.
Right next to it, the butler’s pantry is ideal for staging drinks or desserts like a home remodeling contractor preparing for a photoshoot.
These are the kinds of thoughtful details that raise your home’s functionality and its resale appeal.
Plus, for those looking at their home as an investment (as you should), extra storage always scores points with future buyers. Or with yourself, because let’s be honest—you’re going to fill every shelf.
Master Suite: A Personal Escape Pod
Tucked away on the left wing of the main floor is a master suite that practically begs you to cancel your weekend plans.
It’s got a tray ceiling that adds height and elegance, direct access to the back porch (read: private coffee mornings), and a spacious walk-in wardrobe that might finally give your credit score a reason to stop running from your online shopping habits.
The ensuite bathroom boasts an oversized shower, perfect for decompressing after scrolling endlessly through home improvement loans and interest calculators.
And remember that whole “corner-lot” ideal?
The side-load garage helps make this house fit snugly onto such lots, maximizing curb appeal while giving you extra space to strut across your driveway like a boss.
A Second Bedroom Suite With Bonus Function
Still on the main floor, a second bedroom suite is ideal for guests, aging parents, or even a teenager who claims they “need their space.”
It’s just far enough from the master suite for peace and privacy, but close enough to stay connected.

Right beside it? A large laundry/craft room that might actually make doing chores bearable.
There’s plenty of space for folding, sorting, or unleashing your inner Pinterest board.
Pair that with a solid home warranty and this area alone could turn into one of your home’s hardest-working spaces.
The Walls of Glass and Light
This plan doesn’t mess around with small windows. No, it uses walls of glass to bathe your home in natural light and offer unobstructed views of your backyard oasis.
It’s like getting a high-end interior design software demo in real life—clean lines, glowing daylight, and the kind of brightness that makes every piece of furniture pop.
Imagine setting up your Christmas tree, your birthday balloons, or just admiring the greenery you never thought you’d be able to keep alive. Light is not just decoration here—it’s a living part of the design.
The Lower Level: Where the Fun Happens
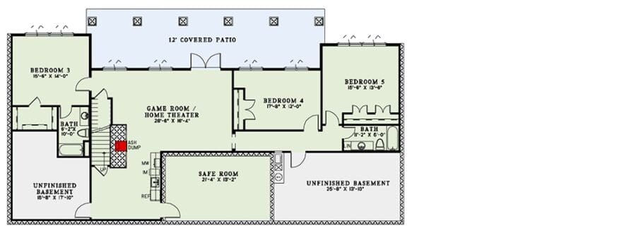
Descend to the finished lower level and discover an entire world of possibilities—three additional bedrooms , a game room with a wet bar, and a large safe room that doubles as a storm shelter or panic room, depending on your level of parental anxiety.
This isn’t just a basement—it’s practically its own mini house. Whether you plan to use it for guests, teens, or short-term rental income , the versatility here is real.
You could even use this space while living upstairs during a major renovation, especially if you’re tapping into a home equity loan for that dream remodel.
Breezeway Bonus and Angled Garage
Let’s not overlook the breezeway—a feature that combines charm and function. It connects the house to the angled garage, protecting you from the elements while adding character.
Plus, the garage itself includes two storage rooms, which is the holy grail for anyone who’s ever tried to cram holiday decorations, gym equipment, and lawn gear into a single closet.

The building cost estimator in your head might be ticking up, but rest easy—this home’s smart layout actually helps keep construction costs in check by maximizing usable space and reducing waste.
Bonus Space: Your Wild Card Room
One of the most exciting parts of this house plan? The optional bonus space. Now, I know what you’re thinking: “Do I really need more space?” And the answer is… of course you do.
Think of this as the choose-your-own-adventure section of the home. Maybe you turn it into a home office with top-tier interior design software to help you lay it out.
Or a private gym with all your equipment. Maybe it’s a teen lounge, a cozy reading nook, or even a full-blown media room with surround sound and blackout curtains.
If you’re someone who’s already thinking about future home improvement loans, this is your golden opportunity.
This bonus space isn’t just a nice-to-have—it’s a major asset when you consider your property value and potential resale appeal. Buyers love flexible space, and lenders appreciate it when you’re adding square footage that increases your home’s value.
Built for Comfort and Efficiency
Every inch of this home has been thoughtfully planned, from the split bedroom layout that gives everyone breathing room to the wide-open center that brings everyone together.
And let’s talk about comfort. The insulation, airflow, and energy-conscious layout mean you can buy peace of mind along with a smaller utility bill—something both your wallet and your home insurance provider will appreciate.
A reliable home warranty also goes a long way in making sure all these systems stay in tip-top shape.
Whether it’s the HVAC humming in the background or your smart home technology doing the dishes (okay, fine, just the dishwasher), this house is designed to simplify your life, not complicate it.
Designed for Life’s Transitions
One of my favorite things about this plan is how it grows with you. Maybe you’re starting with a young family and turning one of the lower-level bedrooms into a playroom.
A few years later, it becomes a teen hangout or even a quiet space for in-laws to visit. If you’re planning for multigenerational living or just a more flexible lifestyle, this setup delivers big.

And let’s not forget how home remodeling contractors will absolutely love working with this layout. It’s open, adaptable, and makes expansions or updates less stressful.
With a solid foundation and smart construction choices already in place, future improvements—whether funded through a home equity loan or refinance mortgage—become far more manageable.
All of this comes wrapped in stunning Mountain Craftsman-meets-Modern Farmhouse curb appeal, making this home a visual knockout from every angle.
Whether you’re buying your first home, upgrading for more space, or making a smart investment in your family’s future, this floor plan brings it all together.
It doesn’t just look like a dream home—it lives like one. And if you ask me, that’s worth every signature on the dotted line.
Choosing a house plan is just the beginning—what comes next can shape your future. Be sure to research mortgage rates, check your credit score, and work with a reliable real estate agent.
Protect your home with solid home insurance, a dependable home warranty, and keep an eye on future refinance options. Want to increase your property value?
Think solar panels, smart home upgrades, and energy-efficient appliances. And before construction starts, use interior design software to bring your vision to life, down to the last detail.










