5-Bedroom 2-Story Modern Farmhouse With Bonus Room & Side Garage (Floor Plan)

- 4,310 sq. ft.
- 4 – 5 Beds
- 5.5 Btahs
- 2 stories
- 3 Cars
If you’ve ever dreamt of living in a home that looks like it was plucked straight from your Pinterest board.
With more square footage and less pretense, let me introduce you to this modern farmhouse stunner.
It’s got the warmth of a cozy cottage, the scale of an estate, and enough smart features to make even your tech-savvy cousin jealous.
Let’s take a tour of this dream setup, shall we?


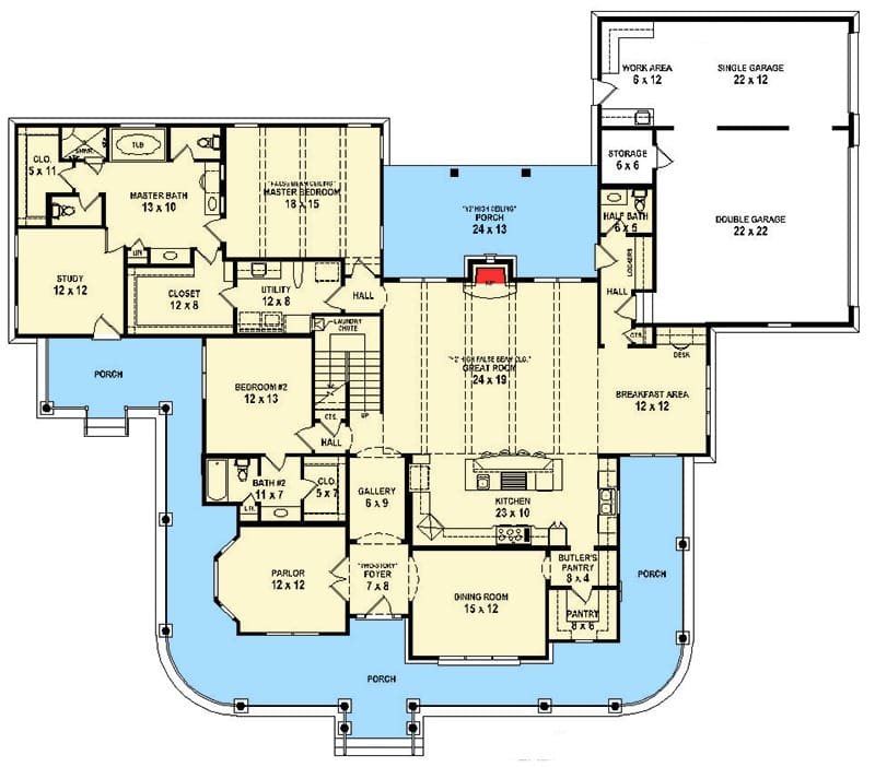
The Porch Life is Real
Right off the bat, you’re greeted by a massive wraparound porch that practically screams, “Grab a rocking chair and a sweet tea.”
This covered porch doesn’t just hug the front—it wraps around the sides like a big architectural bear hug.
It’s perfect for lazy summer evenings, grilling with friends, or just watching your property value steadily climb. Seriously, homes with curb appeal like this? Instant investment potential.
And speaking of investment—while mortgage rates are always something to keep an eye on, this farmhouse makes every penny feel worthwhile. With this much outdoor living space, you’re getting more than just a house—you’re getting a lifestyle.
Hello, Light-Filled Open Layout
Inside, you’re met with soaring 10-foot ceilings that make each room feel even more spacious than it already is.
Natural light floods the open floor plan thanks to glorious walls of glass that let you admire your backyard from just about anywhere.
And let’s talk layout for a second. If you’ve ever played around with interior design software to dream up the perfect space, this home probably checks every box.
Before you fall in love with the perfect floor plan, take a moment to consider the financial side. Comparing mortgage rates, improving your credit score, and working with a reliable real estate agent can save you thousands. Look into home insurance, consider a home warranty, and plan ahead for refinancing. It all adds long-term value to your home.
The beamed great room is connected to the heart of the home—the kitchen. And oh boy, what a kitchen it is.
A huge island with a forward-facing sink lets you gaze into the fireplace-warmed family room while chopping veggies or pretending to, so you can still keep up with the conversation (or Netflix episode).
The Kitchen Dreams Are Made Of
This kitchen is like the Beyoncé of kitchens—flawless. It’s not just big, it’s smartly designed. Picture a walk-in pantry and a butler’s pantry.
Yes, two pantries. That means enough room to store all your essentials, snacks, and possibly that fancy espresso machine you bought during your last “treat yourself” moment.

A kitchen this functional practically begs for Sunday brunches and family holidays. And thanks to the attached formal dining room, complete with access to both pantries, you’ve got the setup for everything from weeknight dinners to Thanksgiving spreads.
With thoughtful planning like this, it’s no surprise homeowners often view such features as essential when talking to a real estate agent about purchase decisions.
It’s the kind of place that makes you glad you got that home loan pre-approval out of the way early.
Master Suite = Masterpiece
Now let’s retreat to the master suite, which is basically a spa with a bed. Beams across the ceiling add rustic charm, while the attached study lets you work (or scroll endlessly) in peace.
The tray ceiling brings an elegant touch that pairs beautifully with a private door to the back porch—your personal escape route when the living room gets too rowdy.
And yes, the bathroom is equally dreamy. Double vanities, spacious shower, soaking tub—everything you’d expect when choosing the right home remodeling contractor to bring luxury into your daily routine.
And don’t get me started on the closet space—it’s walk-in, obviously, because the only thing better than one dreamy feature is five of them stacked together.
Split Bedroom Perfection
The split-bedroom layout? Genius. It gives everyone their own little wing of the house. Each bedroom not only has its own walk-in closet (because clutter is the enemy) but also its own private bathroom.
This is ideal for older kids, in-laws, or guests who like their privacy. It also means fewer arguments over mirror time.
This kind of layout isn’t just about comfort—it adds serious resale value. And with the right home insurance and home warranty, your investment stays protected while you live your best life.
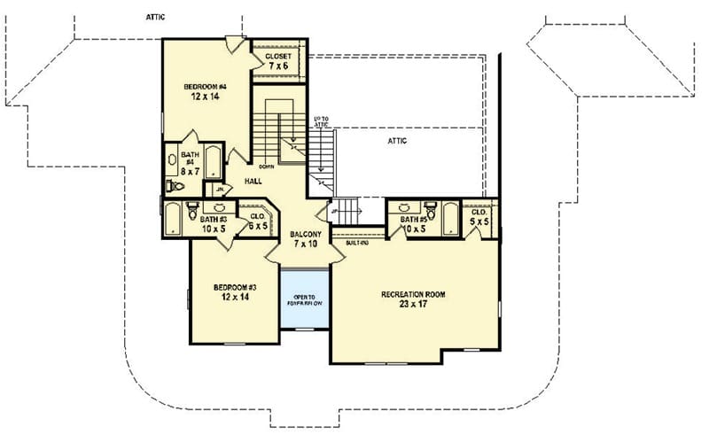
Rec Room with Secret Powers
On the second floor, things get even more exciting. There’s a rec room that’s just begging to become a game room, theater, yoga studio, or all three.
It even comes with a walk-in closet and full bath, so if your cousin “just needs a place to crash for a few months,” you’ve got the perfect guest quarters.

This optional bonus space gives you flexibility. You don’t have to finish it right away—just keep it in your back pocket for later.
It’s a great way to add value over time, especially if you ever take out a home equity loan for future upgrades.
Corner Lot? No Problem
The side-load garage is a real gem for those of us eyeing a corner lot. It keeps your home’s aesthetic front and center while tucking away all the utility stuff on the side.
If you’ve ever used a building cost estimator, you know this kind of garage adds both form and function.
And don’t underestimate the added value of a home that’s garage-friendly and corner-lot-approved.
That’s a purchase feature real estate agents love to highlight. It’s also something that makes it easier to refinance your mortgage down the line when your home’s worth more than when you bought it.
Smart Living and Safe Living
With all the talk of smart home technology, you’ll be glad to know this layout accommodates it beautifully.
Whether it’s smart lights, speakers, thermostats, or the best home security system you can find, the wiring and flow make everything accessible and seamless.
And when you’ve got a house this size, peace of mind matters. From locking down the front porch to checking your garage doors remotely, integrating tech into your farmhouse is a no-brainer.
Bonus Spaces That Earn Their Keep
Let’s revisit that second floor. It’s more than just a place for sleepovers and storage. Every upstairs bedroom comes with its own private bathroom and—you guessed it—a walk-in closet.
This isn’t just luxury for the sake of bragging rights. It’s a smart use of space that adds tremendous property value.
The beauty of this layout is how flexible it is. Need a home office? Pick a room and go. Want a teen suite with room for a desk, bed, and beanbag zone? Covered. Have aging parents who need privacy but proximity? Done.

If you’re the type who likes to consult a building cost estimator or play around with future reno ideas using interior design software, the options up here are a gold mine.
And that rec room? With its full bath and closet, it can moonlight as an in-law suite, a cozy Airbnb space, or your personal karaoke lounge.
Whatever your dream space looks like, this floor delivers the square footage and functionality to bring it to life—no home remodeling contractor required (though one could make it even fancier).
Backyard BBQs & Outdoor Living Dreams
Now let’s step out back. This isn’t your average “tiny slab of concrete and grill” kind of setup. We’re talking true outdoor living with a dedicated barbecue porch.
It’s tucked just off the main living space, so you’re never more than a few steps from the fridge or another helping of potato salad. The layout encourages year-round use—just add a space heater or fire pit and you’re set.
For those of us who keep a mental Pinterest board titled “Dream Backyard,” this porch is a game-changer.
And if you’re serious about smart home technology, think speakers embedded in the eaves, automated lighting zones, and weather-resistant outlets for all your gadgets.
This space is where memories are made—and where your home insurance policy might even save you a little if you’ve taken fire safety into account with the right grill setup and distance from the siding.
A Home That Grows With You
One of the smartest things about this modern farmhouse is that it’s not just big—it’s adaptable. Whether you’re early in your career and planning ahead, or you’re halfway through raising a family and just trying to survive carpools and science projects, this house flexes with you.
Need to refinance your mortgage in a few years? With the way this floor plan boosts usability and aesthetics, you’re likely to see excellent appraisal numbers. That could mean lower interest rates or tapping into your home equity loan for upgrades.

Want to buy it as a long-term investment property? With multiple suite-like rooms, a bonus space that works for anything, and serious curb appeal, it checks all the boxes for high demand in any market.
At the end of the day, this modern farmhouse isn’t just about square footage. It’s about how that space feels.
It’s the laughter echoing through the great room, the smell of barbecue drifting from the back porch, the quiet mornings in your private study, and the long conversations on the wraparound porch under string lights.
It’s a home where you can see yourself not just living—but thriving. Raising kids, growing old, working hard, and making the most of every corner.
It’s more than a house. It’s your future—and it’s ready for you to buy, build equity, and live fully. Now that’s a plan worth investing in.
Choosing a house plan is just the beginning—what comes next can shape your future. Be sure to research mortgage rates, check your credit score, and work with a reliable real estate agent.
Protect your home with solid home insurance, a dependable home warranty, and keep an eye on future refinance options. Want to increase your property value?
Think solar panels, smart home upgrades, and energy-efficient appliances. And before construction starts, use interior design software to bring your vision to life, down to the last detail.










