5-Bedroom 2-Story Modern Farmhouse With Laundry on Both Floors (Floor Plan)

Specifications:
- 4,706 Sq Ft
- 5 Beds
- 5.5+ Baths
- 2 Stories
- 3 Cars
Imagine stepping into a modern farmhouse that is as much a statement of style as it is a comfortable abode.
Picture a 4,706 square foot layout that elegantly marries rustic farmhouse charm with the clean lines of modern design.
It’s not just any house—it’s a place where design dreams materialize into reality.
The first thing that strikes you upon arrival is the home’s captivating facade, featuring board and batten siding that exudes a timeless elegance, complemented by a broad shed dormer that adds a touch of contemporary flair.
A shed roof over the welcoming front porch seems to say, “Step inside to a world where design fantasies come to life.”


As you enter, the foyer opens up into a breathtaking view of the vaulted great room, the heart of the home, destined to host countless cozy evenings and vibrant gatherings.
Off to the right, French doors open to a secluded study—a perfect refuge for work or quiet contemplation.
This room smartly connects to the mudroom and kitchen, demonstrating that in this home, beauty seamlessly meets functionality.
The kitchen is a culinary dream, boasting a large island with casual seating, ideal for sipping morning coffee or enjoying casual meals.
Double sinks facing the dining area make even the mundane task of dishwashing enjoyable with delightful views.
Before you fall in love with the perfect floor plan, take a moment to consider the financial side. Comparing mortgage rates, improving your credit score, and working with a reliable real estate agent can save you thousands. Look into home insurance, consider a home warranty, and plan ahead for refinancing. It all adds long-term value to your home.
Speaking of views, the dining area extends to a deep back porch, beautifully blending indoor and outdoor living, perfect for entertaining or simply relaxing.
The master suite is more than just a bedroom; it’s a luxurious retreat.
With direct porch access and a vaulted ceiling, it elevates relaxation to a new level of opulence.
The ensuite bathroom features a comprehensive five-fixture layout and leads into a spacious walk-in closet, ensuring mornings are as smooth as they are stylish.

On the opposite side of the house, another bedroom suite offers privacy and convenience, perfectly placed to appreciate the home’s thoughtful layout.
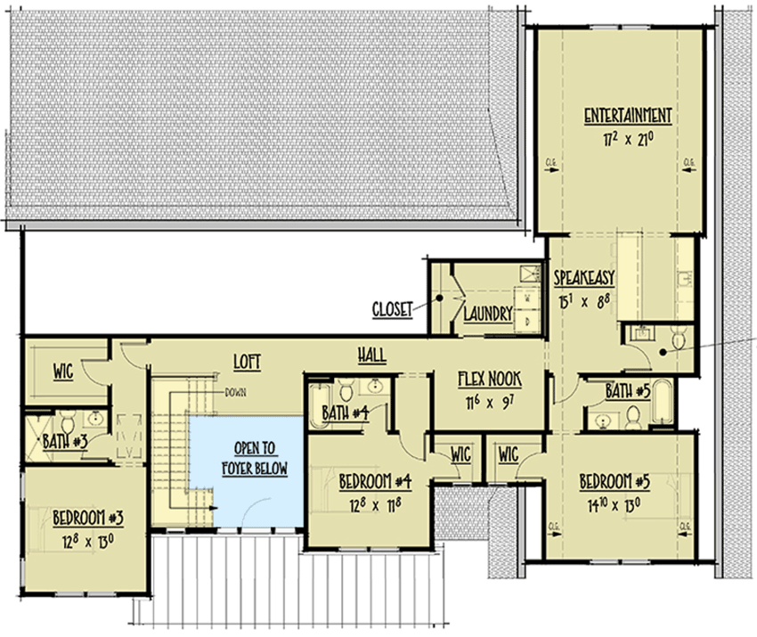
Venture upstairs and the home continues to impress with three additional ensuite bedrooms, each providing a private sanctuary that underscores comfort and style.
The second floor doesn’t just house bedrooms—it’s a versatile space featuring a flex room adaptable for anything from yoga sessions to a study space, exemplifying the home’s commitment to flexible living.
Moreover, a strategically placed upstairs laundry room adds practicality, sparing you the hassle of navigating stairs with laundry in tow.
It’s clear that every detail was considered to make daily chores feel less burdensome and more integrated into an efficient lifestyle.
The loft area provides a charming nook ideal for reading, playing, or meditating—whatever your heart desires.
It’s the kind of flexible space that makes the house feel like a home, ready to adapt to your needs and whims.
But the real gem of this home might just be the expansive media and entertainment room, complete with a bar.
It’s a lively hub for laughter, stories, and entertainment, spacious enough for movie marathons, game nights, or just unwinding.

The bar area adds a layer of sophistication, ensuring you’re always ready to host, whether it’s an elegant cocktail party or a casual family get-together.
This home is more than just a structure; it’s a lifestyle choice.
It offers a blend of rustic allure and modern comforts, a place where every detail from the siding to the dual laundry rooms is designed to invite you to stay, relax, and create lasting memories.
This 5-bedroom modern farmhouse plan isn’t just about providing a roof over your head; it’s about creating a life as beautiful as the space you live in.
With ample living areas, versatile rooms, and thoughtful amenities, this home isn’t just built for today—it’s crafted for a lifetime of joy and comfort.
Choosing a house plan is just the beginning—what comes next can shape your future. Be sure to research mortgage rates, check your credit score, and work with a reliable real estate agent.
Protect your home with solid home insurance, a dependable home warranty, and keep an eye on future refinance options. Want to increase your property value?
Think solar panels, smart home upgrades, and energy-efficient appliances. And before construction starts, use interior design software to bring your vision to life, down to the last detail.










