4-Bedroom 2-Story Transitional New American House with Outdoor Kitchen (Floor Plan)

Specifications:
- 3,496 Sq Ft
- 4 Beds
- 4.5 Baths
- 2 Stories
- 3 Cars
Some house plans just feel right from the moment you see them—and this 4-bedroom Transitional New American home definitely falls into that category.
With 3,496 square feet of smartly designed space, 4.5 baths, and a 3-car side-entry garage, it’s the kind of layout that makes every day flow naturally.
From the open-concept gathering areas to the private bedrooms and the dreamy outdoor living space, this plan checks all the boxes for comfort, function, and style—all while setting the stage for a lifetime of memories.


The Entry That Sets the Tone
The covered entry creates an inviting first impression before you even step inside.
Once you walk through the front door, the foyer opens up to the gathering room, setting a warm and welcoming tone for the rest of the house.
The flow feels effortless—each space connects naturally to the next, offering openness without losing that sense of cozy comfort.
The positioning of the foyer also ensures guests get a stunning first look at the home’s spacious layout.
It’s the kind of thoughtful detail that makes this plan feel bigger and brighter than its square footage suggests.
The Heart of the Home
The main level revolves around the kitchen and gathering room, which form the true heart of this floor plan.
The kitchen is designed for both functionality and fun—plenty of counter space, a large central island, and direct access to the dining area make cooking and conversation flow side by side.
Before you fall in love with the perfect floor plan, take a moment to consider the financial side. Comparing mortgage rates, improving your credit score, and working with a reliable real estate agent can save you thousands. Look into home insurance, consider a home warranty, and plan ahead for refinancing. It all adds long-term value to your home.
The walk-in pantry keeps things organized, and its location between the mudroom and kitchen makes unloading groceries surprisingly convenient.
The gathering room, measuring 18 feet wide, offers a perfect blend of openness and intimacy.
It’s large enough for family get-togethers but still feels grounded and homey.
The connection between this room, the dining area, and the outdoor living space creates a natural sense of flow—ideal for those who love entertaining.
Every corner feels accessible and purposeful, making daily living smooth and enjoyable.

Dining Designed for Everyday and Special Occasions
The dining room, tucked just behind the kitchen, offers the ideal setting for both casual family dinners and holiday feasts.
Its placement beside the outdoor living area means you can extend your dining experience right outside when the weather’s nice.
The open flow also ensures easy movement between kitchen, dining, and gathering spaces—something every good floor plan should prioritize.
The proximity to the grill area means summer barbecues and outdoor meals are just a few steps away.
This thoughtful layout blends indoor and outdoor living seamlessly, proving that design convenience can also feel luxurious.
Outdoor Living That Expands the Home
One of the standout features of this plan is the 21′ x 13’6″ outdoor living area.
Covered and connected directly to both the dining room and gathering room, this space transforms the entire first floor.
Whether you’re relaxing with morning coffee or hosting friends for dinner, this area makes outdoor living part of everyday life.
The built-in grill adds an extra layer of charm and functionality.
It’s a space that invites you to cook, laugh, and unwind under the open sky.
The thoughtful transition between indoor and outdoor spaces ensures the flow never feels interrupted—it’s just a natural extension of the home.
A Primary Suite Built for Relaxation
On the main level, the primary suite sits privately to the right side of the plan, away from the busier areas of the home.

Measuring 14′ x 17′, it offers a peaceful retreat with direct access to the luxurious primary bath.
Inside, dual vanities, a freestanding soaking tub, and a spacious walk-in shower create a spa-like atmosphere.
The oversized wardrobe closet completes the suite, offering both storage and comfort in one elegant package.
This area of the floor plan feels perfectly balanced—private enough for rest, yet conveniently close to the main living spaces.
It’s the kind of design that makes getting ready in the morning and winding down at night both effortless and enjoyable.
Everyday Functionality
To the left side of the plan, practical spaces work together to make everyday life smoother.
The mudroom serves as a handy drop zone from the 3-car garage, keeping clutter out of sight.
Right next to it, the laundry room makes household chores easy and efficient.
Then there’s the flex room, which can be adapted to your needs.
It could become a guest room, home office, hobby room, or gym.
The adjacent full bath adds flexibility, making this space ideal for overnight guests or extended family.
Together, these functional areas turn convenience into an art form, ensuring the home feels just as practical as it is beautiful.
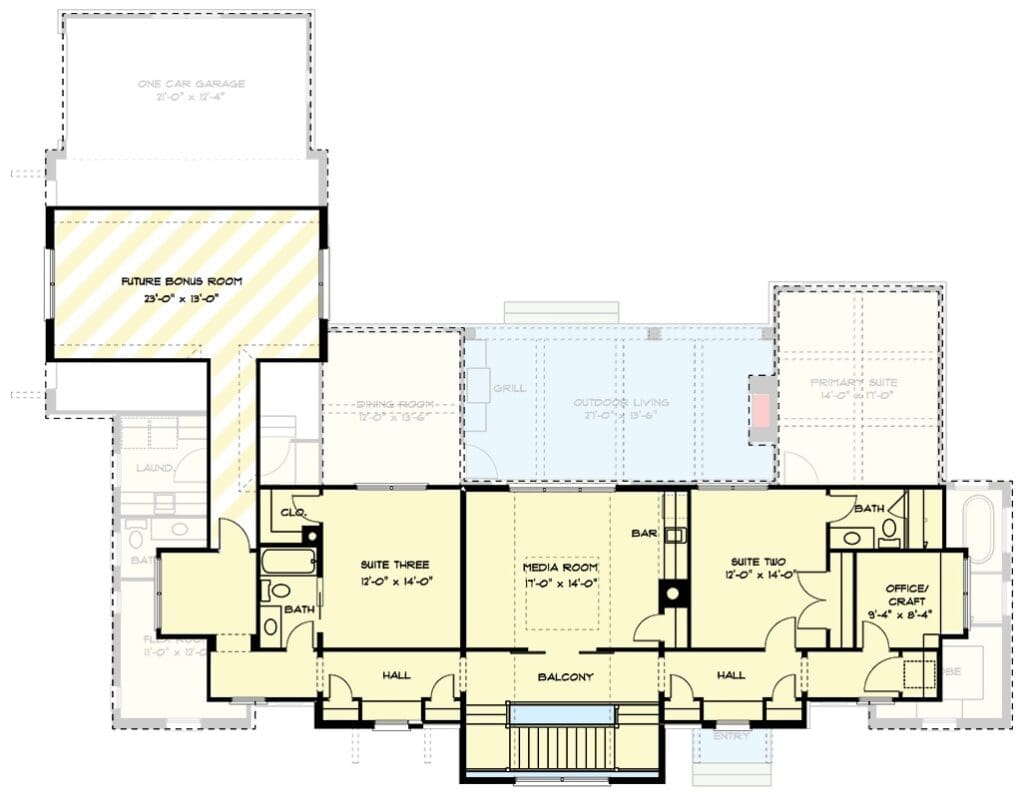
The Upstairs Retreat
The upper level continues the home’s thoughtful design, offering two private bedroom suites and plenty of room for entertainment.

Suite Two and Suite Three each come with their own bathrooms, giving family members or guests plenty of privacy and comfort.
Their generous dimensions make decorating easy—each can be styled as a personal retreat without feeling cramped.
Between the two suites lies the media room, measuring 17′ x 14′.
This is the perfect hangout spot for movie nights, gaming marathons, or simply relaxing.
The addition of a bar nearby adds a fun and functional touch—no need to head downstairs for snacks or drinks during a film.
The Perfect Home Office and Craft Space
Just beyond the upstairs hallway sits a well-placed office/craft room.
Measuring 9’4″ x 8’4″, it’s cozy but efficient—a great space for working from home, tackling creative projects, or keeping household organization in check.
It’s one of those small but meaningful spaces that adds real versatility to the floor plan.
Having an office upstairs also keeps work and home life balanced—close enough to be convenient but far enough away from the main-level activity for quiet focus.
This kind of layout detail reflects how the home has been designed for the way modern families actually live.
The Future Bonus Room
Above the garage, the future bonus room stands ready for whatever you need next.
At 23′ x 13′, it’s a generous space that can evolve with your lifestyle.
Turn it into a home gym, a second media room, a guest suite, or even a playroom—the possibilities are endless.

The fact that it’s positioned over the garage keeps noise separate from the main living areas, which is a subtle but smart design choice.
This bonus area ensures that the home grows with you.
Whether your family expands, hobbies change, or you simply need more space down the road, this floor plan already has you covered.
A Garage That Works for You
The three-car garage—a combination of a two-car and one-car bay—sits neatly at the rear-left of the home, using a side-entry layout.
This placement keeps the home’s front elevation clean and attractive while still providing ample parking and storage space.
The 821-square-foot garage can easily fit vehicles, tools, and even recreational gear without feeling cramped.
It’s a space that adds function without compromising curb appeal, a hallmark of thoughtful architectural planning.
The garage’s connection to the mudroom also makes daily routines—like carrying in groceries or unloading after a road trip—smooth and effortless.
From the open living areas to the tucked-away bedrooms and flexible bonus spaces, this 4-bed Transitional New American floor plan brings together beauty and purpose.
Every room feels like it belongs exactly where it is—nothing wasted, nothing missing.

The flow between levels and the balance between shared and private spaces create a sense of harmony that makes living here feel effortless.
This 3,496-square-foot design is more than just a house plan—it’s a layout built for the rhythms of real life.
It welcomes gatherings, supports quiet moments, and gives you spaces that adapt as your needs evolve.
In every detail, this plan proves that when design is done right, your home doesn’t just hold your life—it enhances it.
Choosing a house plan is just the beginning—what comes next can shape your future. Be sure to research mortgage rates, check your credit score, and work with a reliable real estate agent.
Protect your home with solid home insurance, a dependable home warranty, and keep an eye on future refinance options. Want to increase your property value?
Think solar panels, smart home upgrades, and energy-efficient appliances. And before construction starts, use interior design software to bring your vision to life, down to the last detail.










