4-Bedroom 2-Story Mountain House with Indoor Outdoor Living (Floor Plan)

Specifications:
- 8,120 Sq Ft
- 4 Beds
- 5.5+ Baths
- 2 Stories
- 3 Cars
Welcome to a home where rustic charm meets refined comfort—where every inch of the 8,120 square feet has been planned with purpose.
This two-story mountain house floor plan includes 4 bedrooms, 5.5+ bathrooms, and a 3-car angled garage.
From double master suites to a bonus room and a retractable wall of windows, the layout is more than just smart—it’s extraordinary.
Let’s take a walk through the floor plan that redefines spacious mountain living.






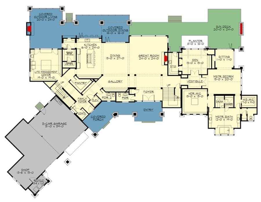
Open-Concept Floor Plan with Retractable Walls
At the core of this mountain house plan is an open-concept layout that merges the great room, dining area, and kitchen into one expansive space.
There are minimal walls here—just wide, flowing areas that make gatherings feel effortless and movement natural.
The retractable wall of windows in the great room is a showstopper, seamlessly connecting the indoor living space to the outdoors.
Whether you’re hosting guests or just enjoying a morning coffee, this design brings nature directly into your home.
With fresh air and natural light flooding the living area, the layout improves both day-to-day comfort and the long-term property value of your investment.
Chef-Inspired Kitchen Layout with Walk-In Pantry
The kitchen in this floor plan isn’t hidden in a corner—it’s the heart of the home.
Before you fall in love with the perfect floor plan, take a moment to consider the financial side. Comparing mortgage rates, improving your credit score, and working with a reliable real estate agent can save you thousands. Look into home insurance, consider a home warranty, and plan ahead for refinancing. It all adds long-term value to your home.
The cooktop island is centrally positioned, offering extra counter space and a great view of the dining and great rooms.
Whether you’re preparing a family dinner or entertaining guests, the open design keeps you connected to the conversation.
And let’s not overlook the oversized walk-in pantry, perfect for buying in bulk or storing small appliances.
A well-planned pantry like this supports efficient food storage and organization—something both homeowners and real estate agents appreciate when evaluating a home’s resale potential.
With thoughtful placement and generous space, this kitchen layout helps you get the most from your home loan pre-approval.
Main-Level Master Suite with Private Deck Access
Located in the right wing of the main level, the master bedroom is designed for privacy and tranquility.
The floor plan carves out a quiet corner for this suite, complete with a cozy sitting nook that opens directly onto a sun deck.
A fireplace on the deck extends the living space outdoors, perfect for relaxing evenings under the stars.
The ensuite bath includes a whirlpool tub, sauna, private toilet room, and dual closets.
It’s the kind of luxury you’d expect in a high-end retreat—but it’s part of your daily life.
If you’re thinking about your long-term investment, this type of suite boosts appeal, comfort, and resale value.

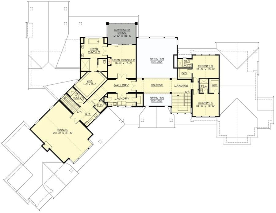
Second Master Suite Upstairs for Multi-Generational Living
Not one, but two master suites are included in this home’s layout.
The second is located upstairs, making it ideal for multi-generational households or long-term guests.
It comes with a private deck and a full ensuite bath, offering independence while maintaining connection to the main living spaces.
The presence of a second master suite in the floor plan enhances the flexibility of the home and supports a variety of living arrangements.
If you’re planning to purchase a home for both lifestyle and financial purposes, dual suites provide options that support both comfort and smart mortgage planning.
Additional Bedroom Suites for Guests or Family
Beyond the dual master suites, the upper floor includes two more spacious bedroom suites.
Each comes with its own private bathroom and ample closet space.
These suites are positioned thoughtfully in the layout to maximize privacy while maintaining accessibility.
This bedroom arrangement works well for growing families, visiting guests, or even future home equity loan opportunities if you choose to repurpose a room as an office or hobby space.
With everyone having their own space, the home stays peaceful—and perfectly functional.
Bonus Room and Kitchenette for Versatile Living
Adjacent to the upper-level bedrooms, the floor plan features a large bonus room with a nearby kitchenette.
This is the space that adapts to your lifestyle—whether it’s a media room, playroom, home gym, or guest lounge.
The kitchenette adds convenience, allowing snacks and drinks without needing to head downstairs.
Having a dedicated area like this adds immense value, especially if you’re using interior design software to personalize the layout before construction.
It’s a smart feature that supports both everyday life and long-term home improvement planning.
Elevator and Dual Staircases for Seamless Access
This mountain home doesn’t just offer space—it offers smart accessibility.
The floor plan includes two staircases and a centrally placed elevator, making every area of the home easy to reach.

Whether you’re bringing groceries upstairs or planning for aging in place, this layout supports long-term livability.
Installing an elevator at the design stage, rather than retrofitting later, can save time and cost.
It’s a move that enhances your home’s usability and becomes a highlight during any property appraisal.
Angled Three-Car Garage with Built-In Workshop
Located on the lower side of the house, the angled 3-car garage offers more than just parking.
This part of the floor plan includes space for a built-in workshop and a recycling center, creating a highly functional entry point to the home.
Whether you’re working on DIY projects or organizing gear, this garage supports hobbies and organization.
The inclusion of a workshop also improves your home’s flexibility.
If you ever work with a home remodeling contractor, this area can be further customized, potentially increasing both enjoyment and property value.
Dedicated Life Management Center on Main Level
In one of the smartest uses of square footage, the floor plan features a dedicated life management center—a central hub for daily tasks like sorting mail, managing calendars, and storing important documents.
Think of it as a mini home office designed for real-life logistics.
Whether you’re monitoring your credit score, paying bills, or setting appointments, this tucked-away space keeps life on track.
It’s the kind of feature that makes a home function more efficiently, especially when budgeting for home insurance or researching the best home security system.
Outdoor Living Spaces Built Into the Floor Plan
This isn’t just a house in the mountains—it’s a mountain house.
The design makes outdoor living a core feature of the layout.
Both the main and upper-level suites have private deck access, while the great room opens directly onto a spacious patio via retractable walls.
These outdoor connections expand your usable space and make it easy to enjoy nature year-round.
Whether you’re considering an investment in your lifestyle or your long-term real estate portfolio, this layout offers flexibility, comfort, and high desirability.
Every inch of this 8,120-square-foot mountain house floor plan has been designed for real-life luxury.

From the open-concept layout and chef-inspired kitchen to the dual master suites, bonus room, and built-in life management center, this home supports both high-end living and practical needs.
It’s a layout that welcomes smart purchase decisions, whether you’re comparing mortgage rates, calculating your building costs, or evaluating the benefits of a refinance mortgage in the future.
The structure supports smart home technology, includes thoughtful storage, and leaves room to grow.
If you’re planning to build or buy a home that’s equal parts beauty and brains, this floor plan offers exactly that—designed not just for today, but for every step ahead.
Choosing a house plan is just the beginning—what comes next can shape your future. Be sure to research mortgage rates, check your credit score, and work with a reliable real estate agent.
Protect your home with solid home insurance, a dependable home warranty, and keep an eye on future refinance options. Want to increase your property value?
Think solar panels, smart home upgrades, and energy-efficient appliances. And before construction starts, use interior design software to bring your vision to life, down to the last detail.










