4-Bedroom 2-Story Mountain Home with First-Floor Master (Floor Plan)

Specifications:
- 4,917 Sq Ft
- 4 Beds
- 3.5 Baths
- 2 Stories
- 4 Cars
Ah, mountain homes—imagine living where every breath of air is fresher and every window showcases a scene worthy of framing.
Ever dreamed of owning a sprawling residence nestled among towering peaks?
Join me as we explore a house plan that might just be the blueprint of your dreams.
Welcome to not just any mountain home, but a 4,917-square-foot haven that perfectly marries rustic charm with contemporary luxury.
And if you’re as excited about house plans as I am, you’ll love the detailed plan video waiting for you at the end of this tour!
Stay Tuned: Detailed Plan Video Awaits at the End of This Content!







Picture this: you’re driving up to a breathtaking 4-bedroom mountain retreat that exudes luxury even from the driveway.
This isn’t merely a place to live—it’s a bold statement of elegance and style.

Spread over two generous floors, this home isn’t just designed for a family; it’s crafted around your lifestyle.
The main floor is the heart of the home, where shared living spaces are tailored for both lively social gatherings and quiet family evenings.
Before you fall in love with the perfect floor plan, take a moment to consider the financial side. Comparing mortgage rates, improving your credit score, and working with a reliable real estate agent can save you thousands. Look into home insurance, consider a home warranty, and plan ahead for refinancing. It all adds long-term value to your home.

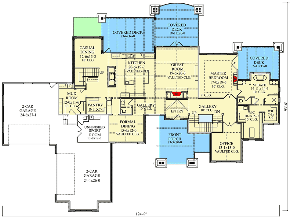
Step inside to high ceilings adorned with rustic beams that set a grand stage, complemented by both interior and exterior stone accents that add a dash of rugged elegance.
Imagine lounging in the great room, basking in the natural light from large windows, with panoramic mountain vistas as your backdrop—it’s like living in a landscape masterpiece!

Adjacent to this inviting area is a kitchen any chef would covet.
With dual islands, it offers plenty of room for both meal prep and casual dining—ideal for lazy Sunday brunches or sophisticated wine and cheese nights.

A butler’s pantry links the kitchen to a formal dining room designed for seamless, graceful entertaining during holiday meals or formal events.

And for everyday meals, enjoy a cozy nook with built-in seating, perfect for morning coffee and conversation.

When the day winds down, retreat to the master suite on the first floor, a sanctuary designed with a private, covered deck for peaceful starlit nights and serene mornings.

The master bath boasts a luxurious double-headed shower and leads into a lavish walk-in closet that rivals high-end boutiques.

Need a quiet spot for work or reflection?

The nearby office is the perfect setting to write, plan, or simply enjoy the calm mountain views.

Upstairs, privacy and comfort continue with two bedrooms connected by a Jack-and-Jill bathroom, offering both convenience and privacy.

Another staircase from the kitchen reveals a secluded fourth bedroom with its own bath and a playroom—perfect for older children or guests seeking independence.

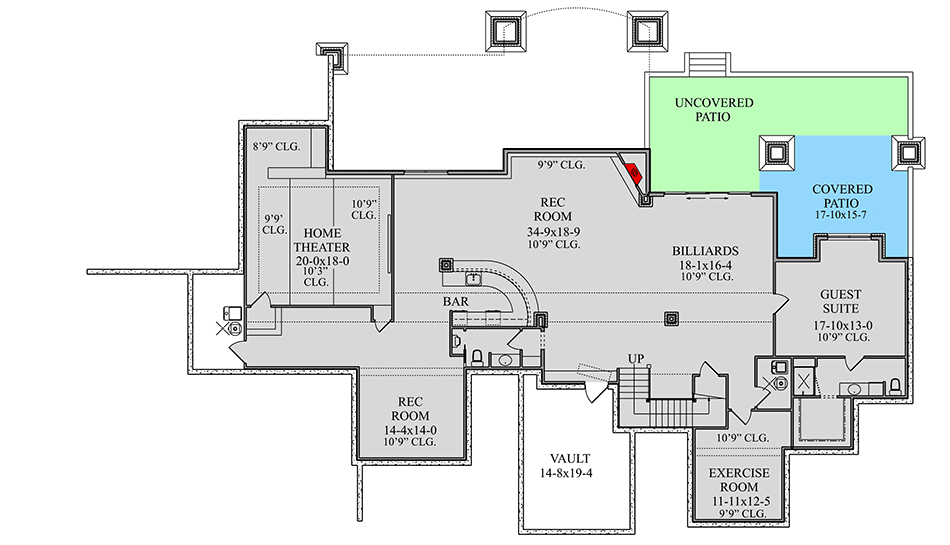
If you’re impressed so far, the optional lower level will amaze you.

It’s designed as the ultimate entertainment zone with a spacious rec room complete with a wet bar, a home theatre for movie marathons, an exercise room to stay fit, and a guest suite with its own private patio—ideal for visitors who might not want to leave!

Outdoor living is essential in a mountain home, and this design delivers.

Large covered decks provide the perfect spots for outdoor dining or just soaking in the stunning views.

Whether you’re hosting a summer barbecue or enjoying a quiet autumn morning, these spaces are an integral part of the mountain lifestyle.
Why settle for the ordinary when you can elevate your life in a home that offers everything from luxurious interiors to awe-inspiring exteriors?
This house isn’t just built—it’s crafted with meticulous attention to detail, understanding both luxury and comfort.
Whether you’re a socialite hosting grand dinners or a solitude-seeker amidst the peaks, this mountain home plan offers a life far from the ordinary.
And really, who wouldn’t want to wake up to misty mountain views after a night under the stars on your private deck?
So, grab your bags (and perhaps a pair of binoculars)—your mountain luxury home awaits!
Choosing a house plan is just the beginning—what comes next can shape your future. Be sure to research mortgage rates, check your credit score, and work with a reliable real estate agent.
Protect your home with solid home insurance, a dependable home warranty, and keep an eye on future refinance options. Want to increase your property value?
Think solar panels, smart home upgrades, and energy-efficient appliances. And before construction starts, use interior design software to bring your vision to life, down to the last detail.










