2-Story 5-Bedroom New American Farmhouse with Angled 3-Car Garage (Floor Plan)

Specifications:
- 4,838 Sq Ft
- 5 Beds
- 5.5 Baths
- 2 Stories
- 3 Cars
We’ve all scrolled past those perfect house plans that make us pause, sigh, and say, “One day…” But every now and then, one comes along that’s just too good to ignore.
This 4,838-square-foot New American house plan isn’t just a home—it’s a carefully crafted lifestyle with enough space, charm, and functionality to make any Pinterest board jealous.
Let’s unpack every dreamy detail of this house that’s just waiting to become someone’s forever home.




Curb Appeal Done Right
This home doesn’t whisper “welcome”—it shouts it, with stunning white vertical and horizontal siding, deep gabled overhangs, and a front elevation that would make any neighbor a little jealous (in a friendly way, of course).
The structure is timeless and elegant, yet distinctly modern, creating instant property value just by existing on a plot of land.
And then there’s that angled garage.
Yes, you read that right—angled.
Not only does it add architectural flair, but it makes maneuvering cars easier (especially for those of us who treat backing up like a NASCAR pit stop).
With room for three cars, and a bay separated by a laundry/mudroom, it’s the kind of feature that speaks to both form and function.
Central Living Spaces Full of Light and Life
Step inside, and the heart of the home opens up in a way that feels both expansive and intimate.
Before you fall in love with the perfect floor plan, take a moment to consider the financial side. Comparing mortgage rates, improving your credit score, and working with a reliable real estate agent can save you thousands. Look into home insurance, consider a home warranty, and plan ahead for refinancing. It all adds long-term value to your home.
Natural light pours in through oversized windows, bathing the shared living spaces in sunshine.
If you’ve ever tried to enjoy a rainy Sunday without decent lighting, you’ll know this is a big deal.
Right at the center, you’ll find an open-concept living room that effortlessly connects to the kitchen and dining area.
It’s ideal for entertaining or just casually lounging in sweats while researching mortgage rates.
And let’s not forget the pièce de résistance—a multi-panel folding door that leads to a screened porch.
In warmer months, you’ll want to live out there, guaranteed.
A Kitchen Built for Cooking and Showing Off
If the kitchen is the soul of a home, this one has some serious personality.

The oversized island is ready for pancake breakfasts, late-night chats, or a buffet spread that says “I definitely didn’t just microwave this.”
Entertaining?
The adjacent butler’s pantry is your secret weapon.
It hides the mess while keeping you fully stocked for guests, holidays, or the occasional frantic Wednesday dinner.
Thinking long-term?
This layout is a win for anyone considering a refinance mortgage in the future—luxury kitchens are top-tier value boosters.
A Master Suite You May Never Want to Leave
Downstairs on the left wing is the master suite, and it doesn’t disappoint.
It’s secluded, spacious, and smartly placed away from high-traffic areas—because sometimes, peace and quiet aren’t negotiable.
The en suite bathroom brings spa-day vibes with a freestanding tub, dual vanities (no more bumping elbows during the morning rush), and not one but two walk-in closets.
Add in smart home technology for mood lighting and digital showers, and you’ve got a daily escape without leaving home.
If you’re eyeing this house as a long-term investment, features like this make it easy to justify applying for a home equity loan or even exploring home improvement loans to customize it further.
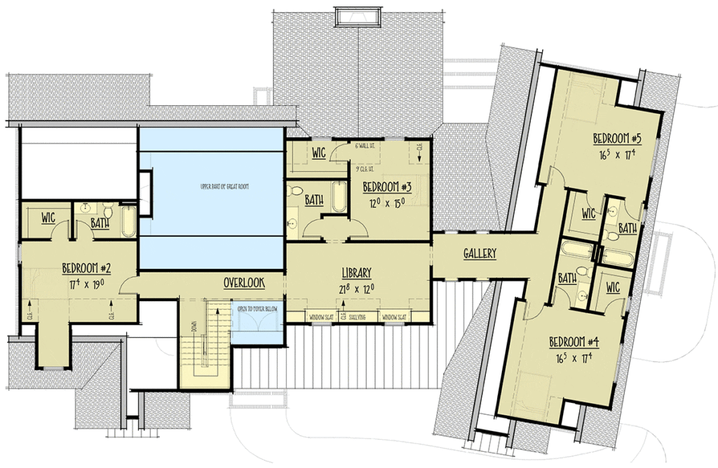
Upstairs Living
The second floor is just as thoughtful as the first.

Four spacious bedroom suites, each with their own private bath, make the upstairs a dream come true for big families, visiting relatives, or hosting out-of-town friends who “just need a few nights” (and end up staying a week).
And then, there’s the library.
Built-in window seats, bookshelves ready for your favorite reads, and a cozy nook that practically begs for rainy day lounging.
It adds a touch of character you rarely find in modern homes, and it’s the perfect place to decompress—maybe while browsing interior design software to plan your next upgrade?
Function Meets Flexibility in Every Corner
Whether you’re a work-from-home professional or just someone who likes having a space to call their own, the main-level home office hits the mark.
It’s strategically located near the master suite, ideal for balancing conference calls and mid-day power naps (I won’t tell).
The laundry/mudroom, tucked near the garage, is built for real life.
It’s big enough to handle muddy boots, lost socks, and the chaos that comes with a household of five—or more.
This kind of practical layout helps with everyday living while silently boosting your credit score just for being so organized (okay, not really—but it feels like it should).
Safety, Style, and Long-Term Value
When it comes to protecting your dream home, features like space for the best home security system and smart locks are non-negotiable.
And this home has the room—and the structure—for top-tier tech.

Integrate it with smart home systems and keep your investment safe, whether you’re in town or traveling.
With a home this well-designed, you’re also thinking ahead.
It checks all the boxes that influence future resale and home insurance premiums—durability, quality finishes, and thoughtful construction.
If you’re working with a real estate agent to buy, sell, or invest, they’ll instantly recognize the staying power in this plan.
Thinking About the Bigger Picture
Let’s say you’ve fallen in love (who wouldn’t?) and you’re ready to move forward.
Now’s the time to look into a home loan pre-approval and chat with a building cost estimator if you’re planning to customize or build this home from scratch.
The clarity helps you move confidently—because dreams don’t work unless you do.
If the market’s right, and your investment mindset is strong, this plan could be a powerhouse.
With refinanced mortgage opportunities down the line, or if you decide to use a home remodeling contractor to put your own stamp on it, this house is future-proofed in all the right ways.
In the world of home plans, this 5-bed New American stunner doesn’t just stand out—it stands above.
With 4,838 square feet of smart design, an angled garage that breaks the mold, and light-filled spaces designed for real living, this isn’t just another floor plan—it’s the blueprint for your best life yet.
Whether you’re making your first purchase, refinancing for an upgrade, or simply dreaming of your “someday” home, this plan offers something rare: the perfect balance of beauty, brains, and livability.

So go ahead.
Picture your life here.
It’s not just a home—it’s an investment in your future, and honestly?
It looks pretty amazing from the front porch.
Choosing a house plan is just the beginning—what comes next can shape your future. Be sure to research mortgage rates, check your credit score, and work with a reliable real estate agent.
Protect your home with solid home insurance, a dependable home warranty, and keep an eye on future refinance options. Want to increase your property value?
Think solar panels, smart home upgrades, and energy-efficient appliances. And before construction starts, use interior design software to bring your vision to life, down to the last detail.










