2-Story 4-Bedroom Modern Farmhouse With Main Floor Master Bedroom (Floor Plan)

Specifications:
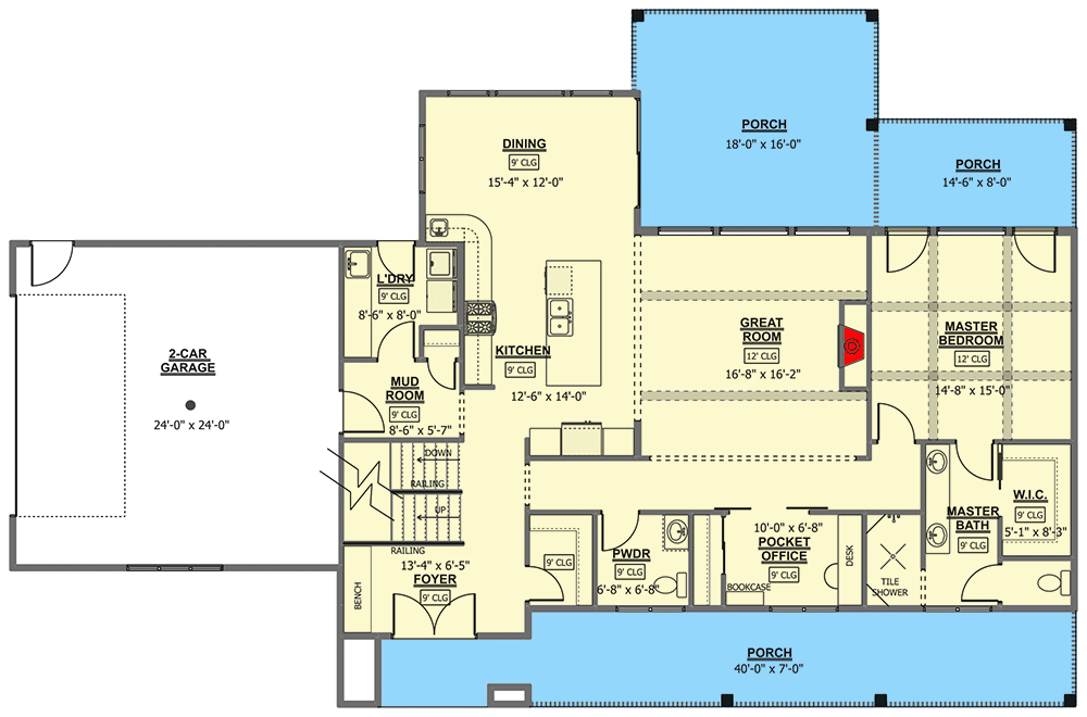
- 2,388 Sq Ft
- 4 Beds
- 2.5 Baths
- 2 Stories
- 2 Cars
Imagine this: a modern farmhouse plan that not only embodies country charm but is decked out with all the modern comforts you could wish for.
Envision a home with 2,388 square feet of cozy, chic living space that’s as stylish as it is welcoming. Sounds like the perfect blend, doesn’t it?
Let me take you on a tour of this architectural gem.
As soon as you step through the door, you’re greeted by a floor plan that’s both snug and spacious, boasting four bedrooms, 2.5 bathrooms, and a two-car garage spread across two inviting stories.
This is a home designed for living well, where you can kick off your shoes, toss a log into the fireplace, and relax in your own personal haven.



The heart of this home is undoubtedly the great room.
It’s a space where laughter rings out and memories cling to the walls as persistently as the scent of your grandmother’s apple pie on a lazy Sunday.
Anchored by a roaring fireplace, it’s ideal for hosting game nights, binge-watching your favorite series, or unwinding with a good book.

Adjacent to this central living area is a kitchen complete with a large island, perfect for gathering around to chat about your day or discuss the ultimate pizza topping combinations while you cook.
Next to the kitchen, you’ll find a quaint back porch—just begging for a pair of rocking chairs or a cozy swing.
Before you fall in love with the perfect floor plan, take a moment to consider the financial side. Comparing mortgage rates, improving your credit score, and working with a reliable real estate agent can save you thousands. Look into home insurance, consider a home warranty, and plan ahead for refinancing. It all adds long-term value to your home.
Picture yourself there, coffee in hand at sunrise, or winding down with a cocktail as the sun sets.

Near the great room is a charming pocket office, an ideal spot for those who work from home or need a quiet corner to manage finances or perhaps pen the next great American novel.
With a window facing the front porch, it offers a view that inspires creativity—or provides a delightful distraction from the day-to-day.
The master bedroom on the main floor is a true retreat.

It features a walk-in closet spacious enough to rival any room in the house and a luxurious bathroom designed for both long, leisurely soaks and quick, refreshing showers.
Upstairs, three additional bedrooms provide flexible space for children, guests, or even a craft room if you’re feeling creative.
The shared bathroom is smartly designed with dual vanities to ease those morning rushes and sibling standoffs.

But this modern farmhouse plan offers more than just beauty; it’s also built for practicality.
A ground-floor laundry room facilitates easy multitasking, and ample storage spaces are cleverly integrated throughout to ensure that the home is as functional as it is beautiful.
Choosing this modern farmhouse means opting for a lifestyle that marries the hustle and bustle of modern life with the soothing allure of traditional comforts.

It’s a choice for those who value simplicity and tradition, tailored to those who believe in living large without necessarily having a large estate.
Whether you’re a family in need of room to grow, a couple looking to downsize without compromising on style, or a single person with a keen eye for design, this plan promises a backdrop for many of life’s best moments.
So, if you find yourself dreaming of a place where contemporary amenities meet timeless country charm, take this as your invitation to explore the endless possibilities offered by a modern farmhouse plan.
After all, home is more than just the place you hang your hat; it’s where you hang your heart.
Welcome to Plan 911007JVD—where dreams of a perfect home come true.
Choosing a house plan is just the beginning—what comes next can shape your future. Be sure to research mortgage rates, check your credit score, and work with a reliable real estate agent.
Protect your home with solid home insurance, a dependable home warranty, and keep an eye on future refinance options. Want to increase your property value?
Think solar panels, smart home upgrades, and energy-efficient appliances. And before construction starts, use interior design software to bring your vision to life, down to the last detail.










