1-Story 5-Bedroom Mountain Craftsman House with Walkout Basement (Floor Plan)

Specifications:
- 6,047 Sq Ft
- 5 Beds
- 4.5+ Baths
- 1 Stories
- 3 Cars
Some house plans are just blueprints.
This one?
It’s a full-on love story waiting to happen.
With 6,047 square feet of rustic charm and refined design, this Mountain Craftsman home plan checks every box—twice.







It’s a home that feels like a mountain getaway but lives like your everyday dream.
So come on in (imagine the door creaking open dramatically), and let’s walk through everything that makes this one-story wonder an irresistible purchase.

Grand First Impressions with Distinctive Craftsman Style
From the moment you pull into the driveway, the personality of this home hits you like a warm cup of cocoa in a ski lodge.
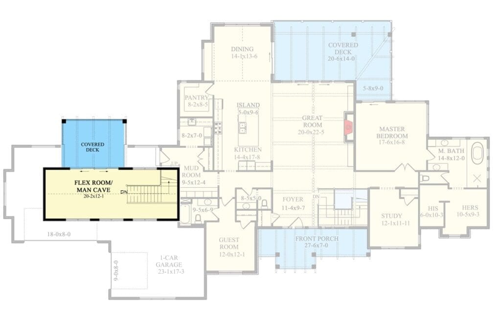
The L-shaped 3-car garage isn’t just a parking spot—it’s a feature.

With a flex room overhead (perfect for a man cave, teen lounge, or hobby hideaway), this space adds versatility before you even walk inside.
Architectural details like rustic timber accents and stonework are what define the Mountain Craftsman style.
Before you fall in love with the perfect floor plan, take a moment to consider the financial side. Comparing mortgage rates, improving your credit score, and working with a reliable real estate agent can save you thousands. Look into home insurance, consider a home warranty, and plan ahead for refinancing. It all adds long-term value to your home.
This home makes a statement before you even set foot inside.

And with today’s property value trends, it’s the kind of home plan that makes a smart investment—not just an emotional one.
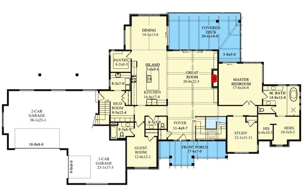
A Welcoming Entry and Great Room That Lives Up to Its Name
Step through the front door and be greeted by a rustic exposed-beam ceiling that stretches from the foyer into the heart of the home: the great room.

It’s the kind of space that makes you want to host the holidays, or at least light a fire and pretend you’re in a cabin commercial.
Anchoring the space is a cozy fireplace surrounded by custom built-ins—perfect for books, keepsakes, or that family photo where everyone’s actually smiling.
Oversized sliding doors open up to a sprawling covered deck, bringing the outdoors in and giving the house a seamless indoor-outdoor living experience.

Trust me, even your real estate agent will raise their eyebrows at the craftsmanship here.
And with smart home technology, you can control lighting, climate, and security from your phone—so yes, it’s beautiful and brainy.
A Kitchen That’s Functional, Fabulous, and Family-Ready
Let’s talk about the island kitchen—because this one deserves applause.

The massive island offers tons of counter space for cooking, baking, or just standing around snacking while pretending to help.
Nearby, a walk-in pantry keeps everything within reach but out of sight (goodbye, cereal clutter).
The adjacent dining room sits in just the right spot: close enough for casual meals, but formal enough for dinner parties.

This kitchen is made for connection.
Whether you’re trying to impress guests or cook for the kids, the layout works hard behind the scenes.
If you’ve ever used a building cost estimator, you’ll appreciate how efficiently this square footage is used.

And hey, if you’re wondering how to make it yours, a home equity loan or mortgage refinance might be your ticket in.
Private Luxury in the Master Wing
Located on the right wing of the main level, the master suite is exactly what you want at the end of a long day—or during a lazy weekend.

It’s spacious, serene, and opens directly onto the back deck.
Morning coffee with mountain views?
Yes, please.

The attached bath includes five fixtures: a soaking tub, dual vanities, a roomy shower, and all the space you need to get ready without playing elbow tag.
And with two walk-in closets, you can finally stop arguing over drawer space.
This suite doesn’t just offer comfort; it adds serious resale and appraisal value.

Paired with a solid home warranty and good home insurance, it’s a stress-free space for years to come.
A Dedicated Study for Productivity and Peace
This home plan includes a private study tucked into the main floor—because even in paradise, emails still happen.

Whether you’re working remotely, managing household tasks, or plotting your next home remodeling project, this space offers quiet and convenience.
Natural light pours in, making it the perfect spot to brainstorm ideas, manage finances, or look up refinance mortgage options.
Pair it with some good interior design software and this could become your favorite room in the house.

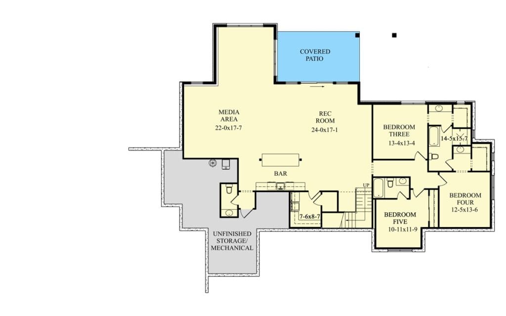
Entertainment-Ready Walkout Basement
Now let’s talk about the walkout basement.
It’s not just a bonus—it’s an entire second world.

You get a massive media and rec room, ideal for movie nights, game days, or hosting friends.
A built-in bar makes you everyone’s favorite host, and there’s enough space to mix drinks and opinions comfortably.
Three private bedroom suites make this level perfect for guests, older kids, or multi-generational living.

And yes, there’s even a second laundry room, because life is too short for stair-hauling dirty clothes.
Whether you’re buying to live or looking for a second-home investment, this basement alone adds serious lifestyle and financial value.

A Flex Room Built for Your Life
Above the garage sits the flex room—an often-overlooked gem in many home plans.
Not here.

This space gives you flexibility, creativity, and opportunity.
Use it as a gym, art studio, gaming lounge, guest room, or secret retreat.
Need a quiet spot to check your credit score before your next big purchase?

Done.
It’s this kind of bonus space that makes the plan work for real-life living.
Families grow, hobbies evolve, and your dream space needs to keep up.

The beauty of this plan is how adaptable it is—without sacrificing style.
Smart Features and Long-Term Value
It’s not just about what you see—it’s about what you get.

This home is wired for smart living, with technology that lets you automate and protect your space with ease.
From the best home security system to app-controlled lighting, it’s built for the future.
And in terms of property value?

With luxury features, efficient use of space, and timeless design, this home stands the test of market changes.
Whether you’re using home improvement loans to personalize it or planning to resell one day, the numbers make sense.
With mortgage rates always shifting, this plan offers long-term livability that makes it worth the commitment.

Even if you’re not quite ready to buy today, it’s worth exploring a home loan pre-approval—because gems like this don’t stay on the market long.
Why This House Plan is a Mountain Marvel
This Mountain Craftsman home plan is more than just pretty pictures.

It’s a fully functional, gorgeously designed, luxury home with the features people actually use—and love.
From the expansive deck to the lower-level rec room, everything is intentional.
Whether you’re ready to purchase now or looking to invest in your future, this plan gives you flexibility, elegance, and room to grow.

It’s ideal for large families, multigenerational living, or anyone who just wants space to breathe.
If you’re working with a real estate agent, make sure this plan is on their radar.
And if you’re just window shopping for now, keep in mind: the best homes are the ones you can picture yourself living in every day—and this one’s easy to imagine.

This Mountain Craftsman house plan isn’t just livable—it’s lovable.
From the fireplace to the flex room, from the master suite to the basement bar, it balances comfort and luxury like few plans do.

Thinking about making it yours?
Get that credit score polished, talk to your lender, and find the right path forward—whether it’s a home equity loan, a purchase, or a smart refinance.
Because while houses come and go, finding the one?
That’s worth the effort.
Choosing a house plan is just the beginning—what comes next can shape your future. Be sure to research mortgage rates, check your credit score, and work with a reliable real estate agent.
Protect your home with solid home insurance, a dependable home warranty, and keep an eye on future refinance options. Want to increase your property value?
Think solar panels, smart home upgrades, and energy-efficient appliances. And before construction starts, use interior design software to bring your vision to life, down to the last detail.










